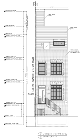
Single-Family Residence Planned at 1849 South Bancroft Street in Point Breeze, South Philadelphia
A three-story single-family residence is planned at 1849 South Bancroft Street in Point Breeze, South Philadelphia. The new home will rise on the west side of South Bancroft Street. Recently issued permits allow for the construction of an attached structure with a pilot house and roof deck. The project is designed by Menna Engineers & Associates, with Platinum Construction and Development as the general contractor.

