Permits Issued for Three-Unit Development at 2507 Manton Street in Grays Ferry, South Philadelphia
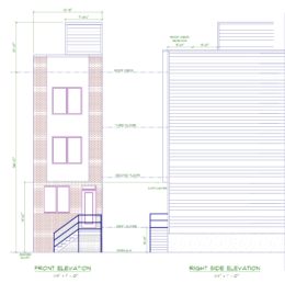
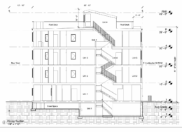
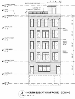
A new residential project is moving forward at 2507 Manton Street in Grays Ferry, South Philadelphia. City records show that permits have been issued for the construction of a three-story, three-unit residential building with a mezzanine level. The development will rise on a lot located mid-block between South 25th Street and South 26th Street. The project will span approximately 2,940 square feet and will include a roof deck with a roof deck access structure. Permits list Supreme Architects as the architect and REB Shayeles Builders LLC as the general contractor.





