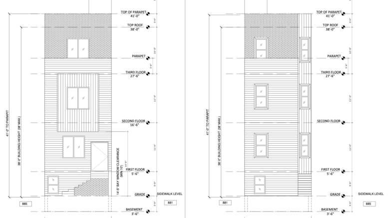
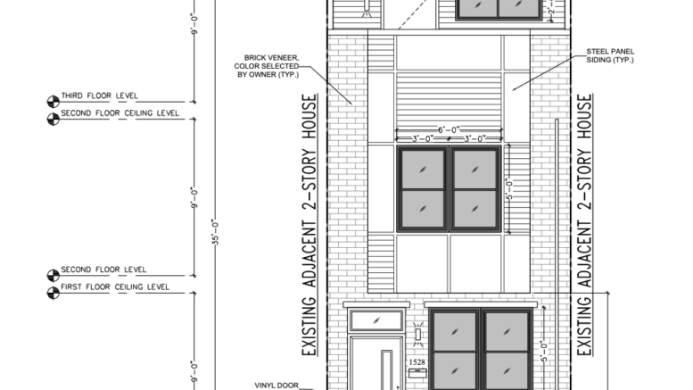
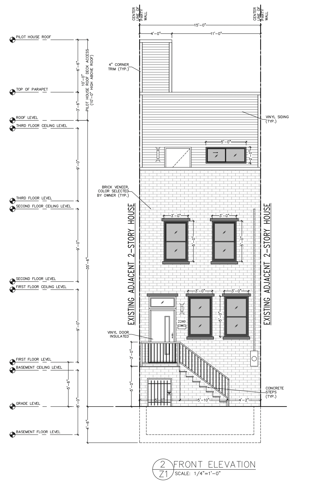
Three-Unit Residential Building Approved at 883 North 45th Street in West Philadelphia
A zoning permit has been issued for the construction of a new multi-family residential building at 883 North 45th Street in West Philadelphia. The project site is a vacant lot located mid-block along North 45th Street and is zoned RM-1, which permits multi-family residential development. The property is owned by 883 45th Street Holdings LLC. Olympia Construction LLC is listed as the contractor, and James Clancy is identified as the design professional in responsible charge.
Read More




