Two-Story Single-Family Home Planned at 1508 South Cleveland Street in Grays Ferry, South Philadelphia
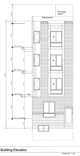
A two-story single-family residence is planned at 1508 South Cleveland Street in Grays Ferry, South Philadelphia, according to recently issued zoning and construction permits. The project is set to rise on a narrow 15-foot-wide lot on the block between Dickinson Street and Tasker Street. Permits list a total construction area of 1,347 square feet. The site, which has long remained vacant, is owned by the Philadelphia Land Bank and has been approved for affordable housing use under the RSA-5 zoning classification. A2 Design Group serves as the architect and RSG Management LLC is listed as the contractor.





