A three-story single-family residence is planned at 1849 South Bancroft Street in Point Breeze, South Philadelphia. The new home will rise on the west side of South Bancroft Street. Recently issued permits allow for the construction of an attached structure with a pilot house and roof deck. The project is designed by Menna Engineers & Associates, with Platinum Construction and Development as the general contractor.
Permits list a total construction cost of $374,000, which includes $300,000 for general construction, $30,000 for excavation, $21,500 for plumbing work, $11,500 for mechanical work, and $11,000 for electrical work.

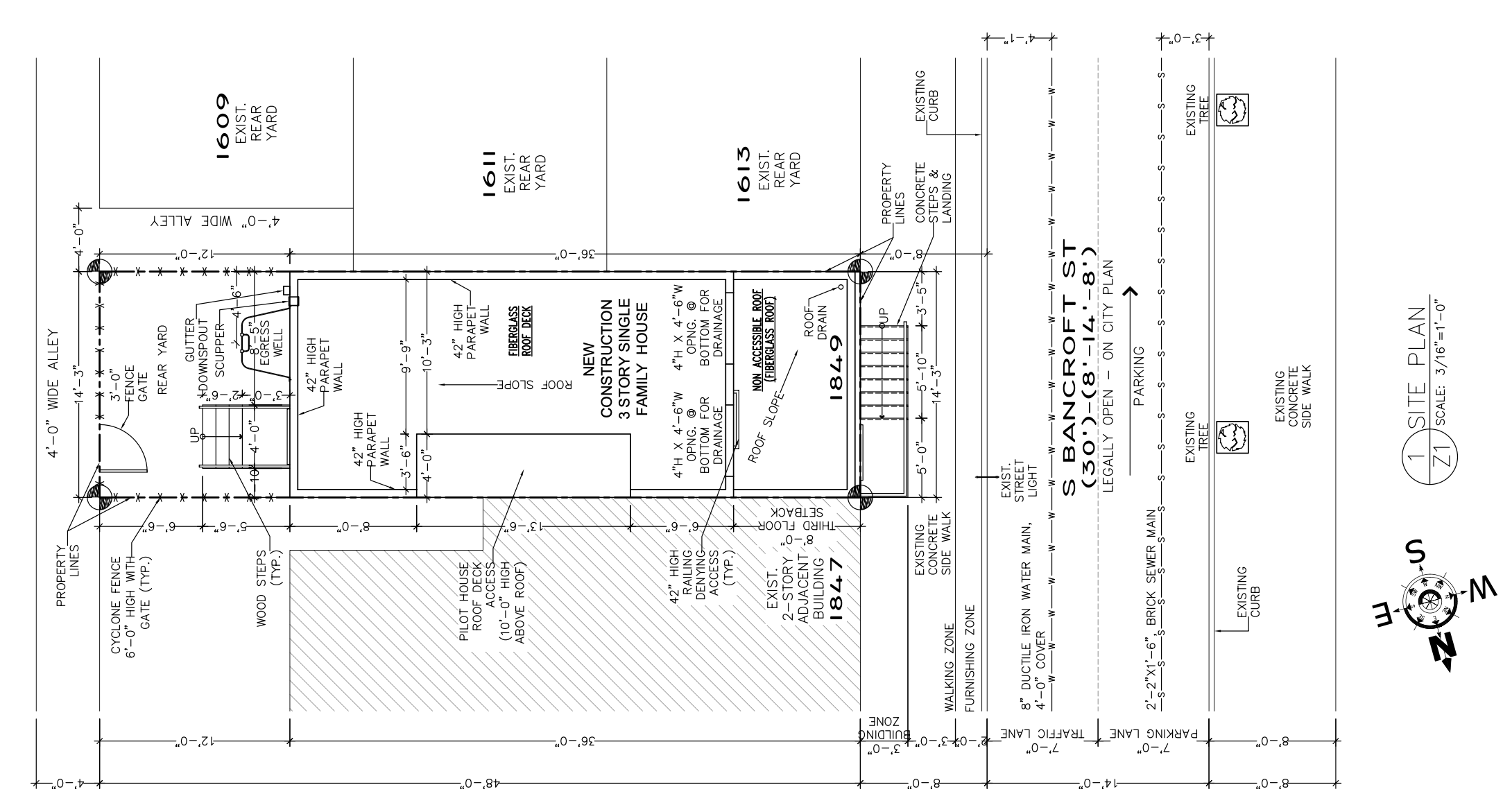
1849 South Bancroft Street Plan via Menna Engineers and Associates
The project will span 1,643 square feet of newly constructed space across three stories plus a basement. The structure will occupy a 14-foot-3-inch-wide lot. The proposed building footprint covers 513 square feet, equating to exactly 75 percent occupied area, while 171 square feet of open area is preserved at the rear, meeting the 25-percent minimum. Plans call for a rear yard depth of 12 feet. The building height is listed as 35 feet 6 inches, remaining under the district maximum of 38 feet. The building permit also authorizes the construction of a full monolithic foundation slab.
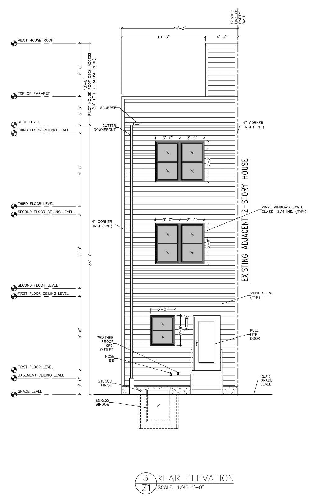
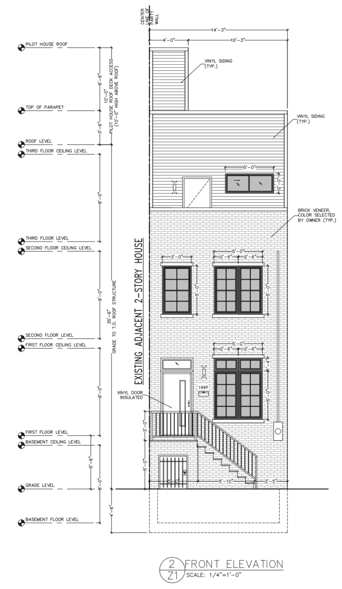
Architectural drawings show a front facade with brick veneer at the lower levels and vinyl siding above. The front elevation includes paired windows at the first and second floors and a larger three-section window at the second floor. A recessed entry sits on the right side of the facade, accessed by a short stair and small porch. The rear elevation features vinyl siding, evenly spaced windows at all levels, and an egress window and stair at the basement. The pilot house rises an additional 10 feet 6 inches above the roof level and provides access to the private roof deck.

1849 South Bancroft Street Rear Elevation via Menna Engineers and Associates
Zoning documents confirm that the site is located in the RM1 district, though the approved L&I use is Single Family Household Living under R3 occupancy. The lot area remains unchanged at 684 square feet.
The redevelopment of 1849 South Bancroft Street will bring a modern single-family home to a residential block of South Philadelphia, adding new housing in an area where reinvestment and infill construction continue to strengthen the neighborhood fabric.
Subscribe to YIMBY’s daily e-mail
![]()
Follow YIMBYgram for real-time photo updates
Like YIMBY on Facebook
Follow YIMBY’s Twitter for the latest in YIMBYnews






“The new home will rise on the west side of South Bancroft Street.”
As I’ve commented at least a half dozen times before (most recently November 24, 2025), “in Philadelphia, even-numbered street addresses are either on the south or west side of the street while odd-numbered addresses are either north or east. The statue of William Penn atop City Hall faces northeast, which I initially found odd (north and east = odd). Now I know that William is looking in that direction towards Penn Treaty Park. According to legend, the site is where Pennsylvania founder William Penn signed his treaty of peace with the local Lenape tribe under an elm tree along the Delaware Riverfront in 1683.
As such, 1849 (odd = north or east) S. Bancroft Street is on the east side of the street.