Permits have been issued for the construction of a three-story, six-unit residential building at 1736 North 22nd Street in in the Cecil B. Moore neighborhood of North Philadelphia. The building will span 5,480 square feet of new construction area and will include a cellar. The development will replace a vacant lot. Permits list TMH Associates as the designer and Holloman LLC as the owner.
The permits list a general construction cost of $350,000 and an excavation cost of $50,000, for a total construction cost of $400,000.

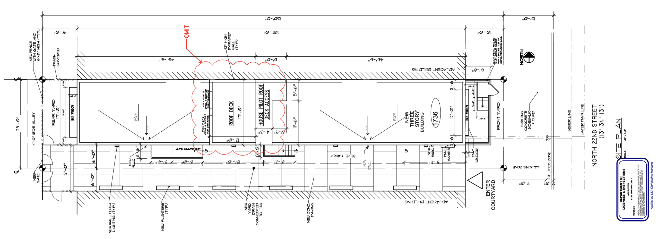
1736 North 22nd Street Plan via TMH Associates Inc
Zoning documents list the lot at 2,760 square feet, with a proposed semi-detached structure occupying 1,717 square feet and an open area of 1,043 square feet. The plans show a side yard measuring six feet, a rear yard of nine feet, and a front yard setback of ten feet. The structure’s height is noted as 36 feet.

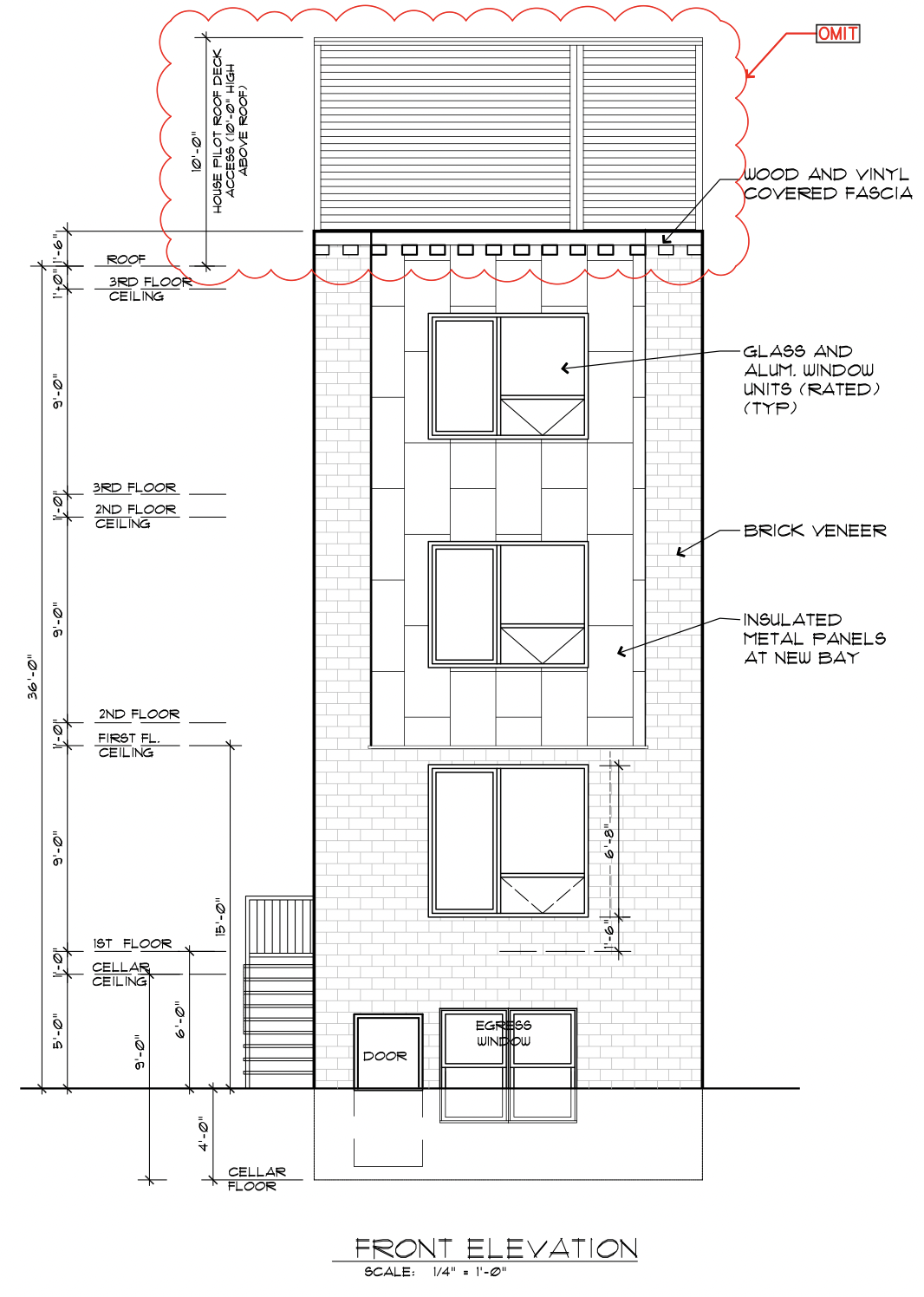
1736 North 22nd Street Front Elevation via TMH Associates Inc
The structure type is classified as R-2 multi-family residential. Excavation is listed at 1,717 square feet. Work will require separate permits for mechanical, plumbing, and fire suppression systems; the building must be fully sprinklered per NFPA 13.

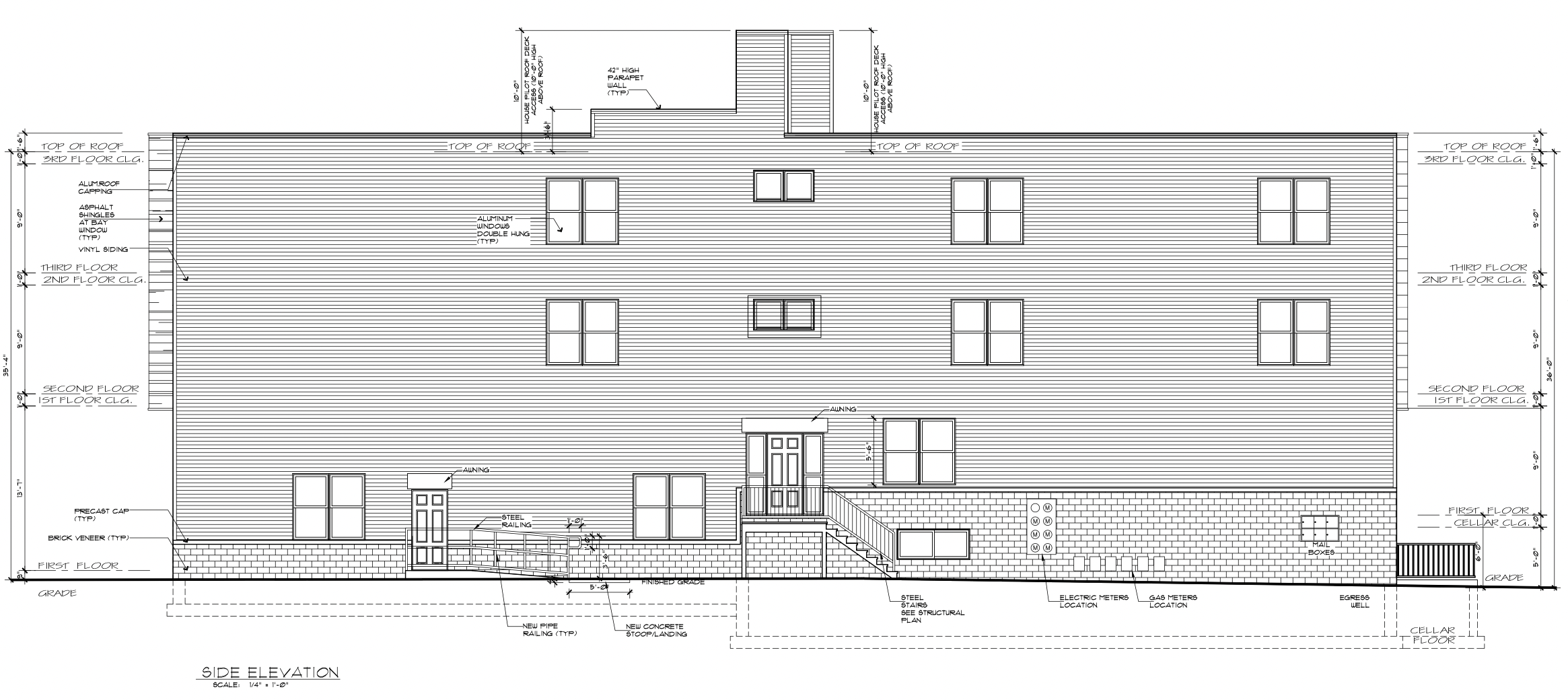
1736 North 22nd Street Side Elevation via TMH Associates Inc
The architectural drawings depict a brick and metal panel façade facing the street, arranged in a three-level vertical bay. The front elevation includes large aluminum and glass window units across each floor, with the ground level featuring an egress window at the cellar and the main residential entry accessed by a short stair. The upper floors incorporate a panel system within the bay, flanked by brick veneer that continues down to the base of the building.

1736 North 22nd Rear Elevation via TMH Associates Inc
The rear elevation is primarily clad in vinyl siding and includes stacked window groupings aligned across all three stories, along with a smaller opening at the cellar level. The amended March 2025 drawings remove the previously approved roof deck and roof deck access structure, with notes on both the front and rear elevations marking the former assembly as omitted. The side elevation shows the full length of the semi-detached wall, with consistent siding, window placements, utility boxes, mail boxes at grade, and new exterior stairs and railings leading to the residential entrances.
No estimated construction timeline has not yet been revealed.
Subscribe to YIMBY’s daily e-mail
![]()
Follow YIMBYgram for real-time photo updates
Like YIMBY on Facebook
Follow YIMBY’s Twitter for the latest in YIMBYnews






It’s unfortunate that those who live at The Haven Lofts (in the former Emmanuel Institutional Baptist Church building next door) who look out their northern windows will be confronted by a vast expanse of homogenous vinyl siding.
I am delighted that they removed the pilot house. Who would have had access to it?? All units, or just the third floor unit?