A new three-story, four-unit residential building is planned at 4641 Lesher Street in Frankford, Northeast Philadelphia, according to recently issued construction permits. The development will rise on a vacant lot along Lesher Street, positioned between Meadow Street and Orthodox Street. Permit documents show that the structure will span 4,629 square feet and will include a cellar. Loney Engineering is responsible for the designs and Banneker Builders Group LLC is listed as the contractor. Coleman Greenville Partners Inc is listed as the owner.
Construction costs are listed at $250,000, which includes $19,500 allocated for excavation.

4641 Lesher Street Plan via Loney Engineering
The project is approved within an RM-1 zoning district and will replace an undeveloped parcel situated among existing residential. The building is approved for household living with four dwelling units, which fall below the maximum number of units permitted on the lot.

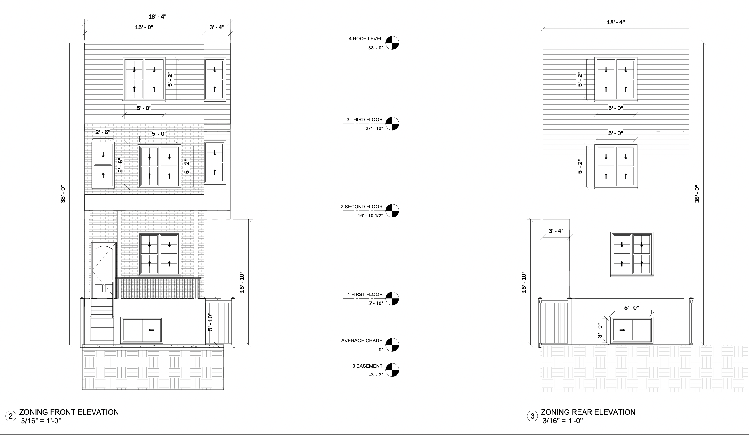
4641 Lesher Street Elevations via Loney Engineering
Zoning materials indicate that the lot measures 2,360.39 square feet, with open-area requirements exceeded by the proposed layout. The project includes a front setback aligned with neighboring structures and a rear yard extending behind the building footprint. No encroachments such as window wells or bay projections are included in the design. The permitted height reaches 38 feet, consistent with the RM-1 district standards.
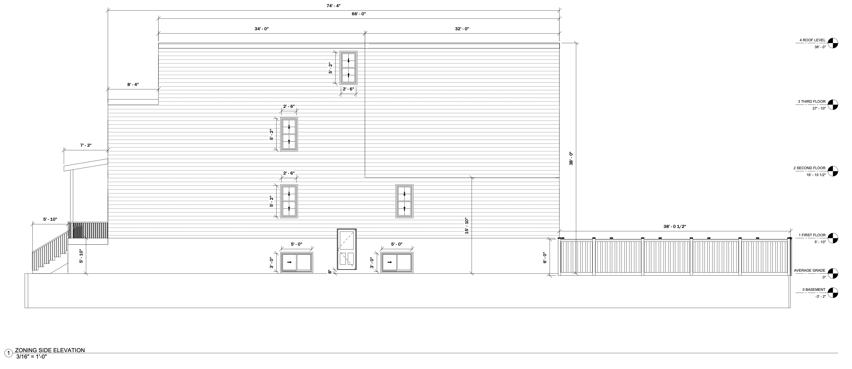
4641 Lesher Street Side Elevation via Loney Engineering
Architectural drawings depict an attached building with a covered porch at the main entrance. The front elevation shows a sequence of windows on each floor and a third-floor setback. Side and rear elevations include regularly spaced window openings and a cellar-level access point. A fenced rear yard occupies the remainder of the lot behind the structure, as indicated on the zoning site plan.
No estimated construction timeline has yet been revealed.
Subscribe to YIMBY’s daily e-mail
![]()
Follow YIMBYgram for real-time photo updates
Like YIMBY on Facebook
Follow YIMBY’s Twitter for the latest in YIMBYnews






“The project is approved within an RM-1 zoning district.”
Here’s an overview of Philadelphia zoning codes. Simple they are not.
RM, Residential Multi-Family Districts
Moderate- to high-density, multi-unit residential buildings
RM-1 to RM-4 designation determines allowable land use, size, and intensity of use. RM-1 is the smallest, least intense of the multifamily codes.
RM-1:
Min. Lot Width 16 ft.
Min. Lot Area 1,440 sq. ft.
Max. Occupied Area Intermediate 75%; Corner 80%.
Min. Front Setback Based on adjacent.
Min. Side Yard Width 5’ to 12’ based on number of families.
Min. Rear Yard Depth 9 ft.
Max. Height /FAR (Floor Area Ratio) 38 ft.
Dwelling Unit Density: A minimum 360 sq. ft. of lot area is required per dwelling unit for the first 1,440 sq. ft. of lot area. A minimum of 480 sq. ft. of lot area is required per dwelling unit for the lot area in excess of 1,440 sq. ft.
—————————
RSD, Residential Single-Family Detached Districts
Detached houses on individual lots
RSA, Residential Single-Family Attached Districts
Attached and semi-detached houses on individual lots
RTA, Residential Two-Family Attached District
Two-family, semi-detached houses on individual lots
RMX, Residential Mixed-Use Districts
Residential and mixed- use development, including master plan development
CA, Auto-Oriented Commercial Districts
A range of uses, often in the form of shopping centers and other destination-oriented uses
CMX (1, 2, 2.5), Neighborhood Commercial Mixed-Use Districts
Neighborhood-serving retail and service uses, including pedestrian friendly retail commercial corridors
CMX (3, 4), Community Commercial Mixed-Use Districts
Community- and region-serving mixed use development, including retail and service uses
CMX (5), Center City Commercial Mixed-Use District
Mixed-use development in the central core area of Center City
IRMX, Industrial Residential Mixed-Use District
A mix of low-impact industrial, artisan industrial, residential, and neighborhood commercial uses
ICMX, Industrial Commercial Mixed-Use District
Commercial and low-impact industrial uses
I-1, Light Industrial District
Low-impact uses including light industrial, fabrication, offices, and research and development
I-2, Medium Industrial District
Light/moderate impact industrial uses including manufacturing, processing, and distribution
I-3, Heavy Industrial District
Intensive, high-impact uses, including extractive industries and petroleum processing and storage
I-P, Port Industrial District
Marine-related industrial uses such as docks, wharves, piers, and transit sheds
SP-INS, Institutional (Special Purpose) District
Institutional uses in accordance with an approved master plan
SP-CIV, Institutional (Special Purpose) District
Development and preservation of public-serving institutions and a customary and complementary mix of uses
SP-PO, Parks and Open Space (Special Purpose) District
Preserve and protect lands set aside for park and open space use
SP-ENT, Entertainment (Special Purpose) District
Development of major entertainment facilities in accordance with an approved master plan
SP-STA, Sports Stadium (Special Purpose) District
Large scale specialized sporting facilities and associated large capacity automobile parking areas
SP-AIR, Airport (Special Purpose) District
Airport uses and complementary mix of uses, while minimizing impacts on surrounding areas
Aaah Oliner LOL
This guy be ‘time to paste my entire zoning handbook so everyone knows I’m an expert’ <3