Permits have been issued for the construction of a three-story, six-unit mixed-use building at 2628-30 South Street in Schuylkill, South Philadelphia. The development will rise on a site positioned along South Street near the intersection with South 27th Street, replacing a pair of parcels previously addressed as 2628 and 2630. Zoning and construction approvals allow for a 7,714-square-foot attached structure with a basement and commercial space intended for financial services. Harman Deutsch Ohler Architecture is the architect of record and Turn Key Realty LLC is listed as the contractor.
The total construction cost is reported at $1.4 million, which includes $105,000 allocated toward excavation.

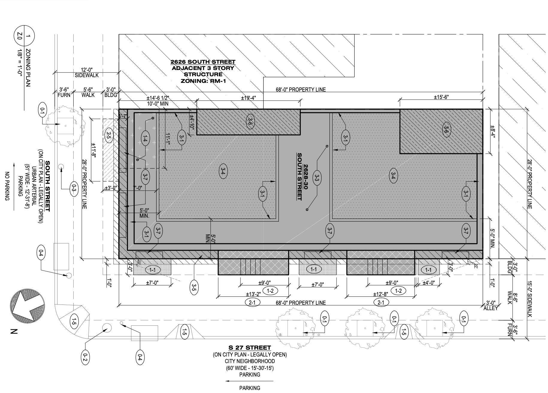
2628 South Street Plan via Harman Deutsch Ohler Architecture
According to the zoning summary, the property is located within an RM-1 district and spans 1,904 square feet. The plans permit six dwelling units, exceeding the district baseline through zoning approval. Dimensional allowances include full lot coverage without side, rear, or front yards. The permitted height reaches approximately 38 feet. The work will follow Type V-B standards.
Permit documentation specifies that the structure will include a commercial space on the ground level with residential use above. The building will be sprinklered per NFPA 13 in the commercial area and per NFPA 13R in the residential levels. Additional permits are required for mechanical, electrical, plumbing, fire suppression, and excavation work.

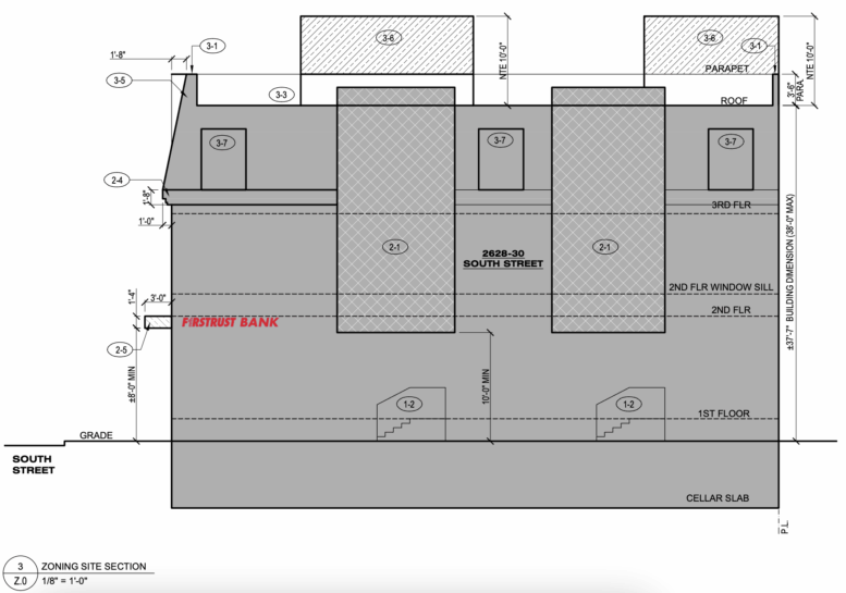
2628 South Street Section 1 via Harman Deutsch Ohler Architecture
Architectural drawings illustrate a three-story façade facing South Street, with commercial frontage at the ground level and projected bay elements on the upper floors. The zoning plans show two roof decks, each served by an access structure, as well as parapets and mansard roof components. Elevation sections depict regularly spaced openings at each level and steps leading from the sidewalk to the building entry along South 27th Street. Area wells and egress wells are located at grade, and a six-foot fence is planned for portions of the side and rear boundaries.
The project will bring new mixed-use density to the Devil’s Pocket section of Schuylkill. Construction may proceed following issued permits.
Subscribe to YIMBY’s daily e-mail
Follow YIMBYgram for real-time photo updates
Like YIMBY on Facebook
Follow YIMBY’s Twitter for the latest in YIMBYnews


Be the first to comment on "Permits Issued for Six-Unit Mixed-Use Building at 2628–30 South Street in Schuylkill, South Philadelphia"