A large mixed-use development is moving forward at 5113 Frankford Avenue in Frankford, Northeast Philadelphia. Permits have been issued for the construction of a five-story, 196,600-square-foot modular detached building combining retail, healthcare, and residential uses, with the latter comprising a total of 132 dwelling units (including 80 designated affordable units). Wulff Architects serves as the project designer, with Domus listed as the contractor.

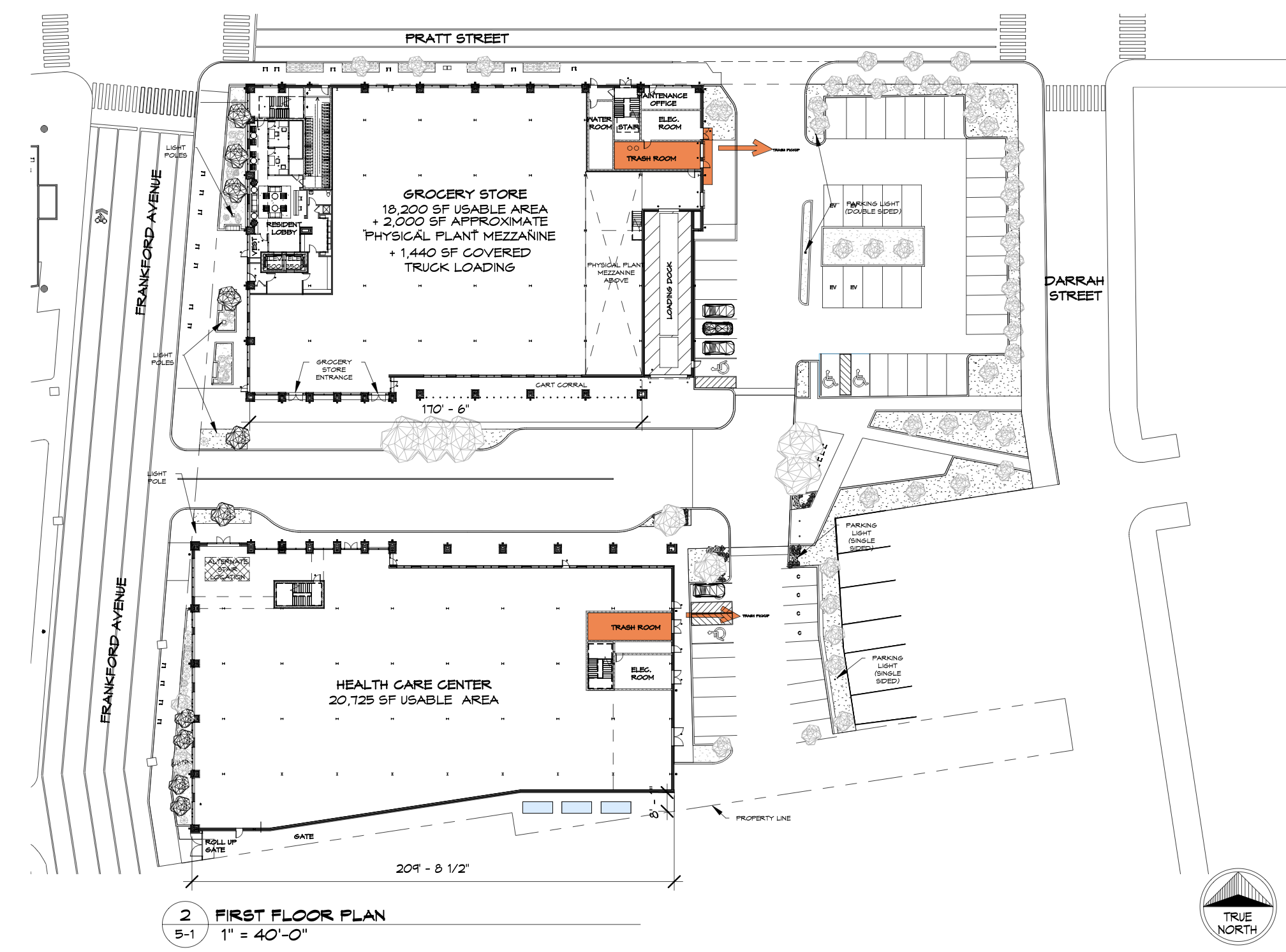
5113 Frankford Avenue First Floor Plan via Wulff Architects

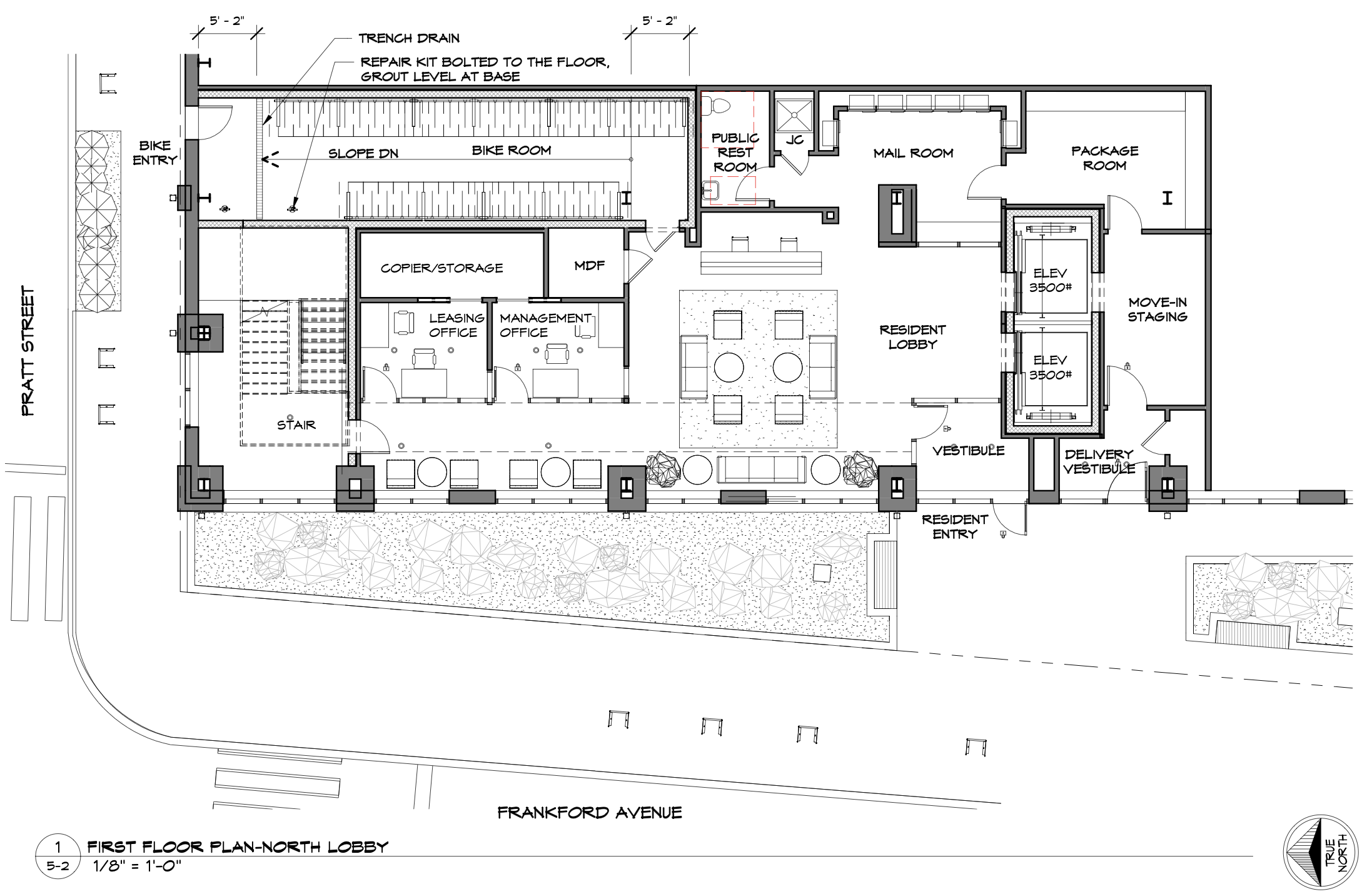
5113 Frankford Avenue First Floor Plan North Lobby via Wulff Architects
Construction costs for the development are listed at approximately $35.6 million, which includes $34.9 million allocated to general construction and $650,000 for excavation work.

5113 Frankford Avenue Section via Wulff Architects

5113 Frankford Avenue South Elevation via Wulff Architects

5113 Frankford Avenue East Elevation via Wulff Architects
The residential component will be classified as Group R-2 occupancy, which will be situated above ground-floor commercial and healthcare space. Total earth disturbance area will span 114,852 square feet.

5113 Frankford Avenue 3D Massing Diagram via Wulff Architects
The approved scope of work multiple business and commercial occupancies at the ground and lower floors, including a grocery retailer, along with medical space. Architectural plans also show a residential roof deck intended for use.

5113 Frankford Avenue Rendering 6 via Wulff Architects

5113 Frankford Avenue Rendering 5 via Wulff Architects
Architectural drawings depict a mid-rise building with a masonry base and a modular residential structure above, organized around an interior courtyard. The development fronts Frankford Avenue and Pratt Street, with elevations showing a consistent façade pattern above the commercial podium. Sections illustrate a vertical stacking of grocery, healthcare, and residential uses, as well as the relationship between the building and adjacent transit infrastructure along Frankford Avenue.

5113 Frankford Avenue Rendering 4 via Wulff Architects

5113 Frankford Avenue Rendering 2 via Wulff Architects
With permits now in place, the project at 5113 Frankford Avenue represents a significant mixed-use and affordable housing investment within the Frankford neighborhood, combining residential density with retail and healthcare services in a single, transit-adjacent development.
Subscribe to YIMBY’s daily e-mail
Follow YIMBYgram for real-time photo updates
Like YIMBY on Facebook
Follow YIMBY’s Twitter for the latest in YIMBYnews






This design could not be “klunkier” It looks like stacked boxcars…..why ?
There must be a special hell for this level of ugliness.
Glad to see a Grocery Store and Healthcare Center but wow this building could not be uglier…
Glad to see a Grocery Store and Healthcare Center but wow this building could not be uglier…
DAMN this is one ugly building. Philly you can do better
It’s gonna be great because I live on Brill St there is nowhere to get a gallon of milk for a loaf of bread. Hopefully they’ll have the stores right there where I can get some food.
Huge flat roof is perfect for solar…should be used.
Do you have low income take pha vouchers
Total and utter ugliness of a development. A complete waste of what could’ve been.