Permits Issued for Two-Family Home at 1937 South Hemberger Street in West Passyunk, South Philadelphia
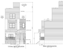
Construction permits have been issued for a three-story two-family residential building at 1937 South Hemberger Street in West Passyunk, South Philadelphia. The new structure will replace a vacant lot sited on the east side of the block between Mifflin Street and McKean Street. Designed by Here’s The Plan, LLC, the building will span 2,200 square feet and will feature a basement and a roof deck. Permits list Hazbi Daku and Renato Rizaj as owners, with the latter also specified as the contractor.

