Construction permits have been issued for a three-story two-family residential building at 1937 South Hemberger Street in West Passyunk, South Philadelphia. The new structure will replace a vacant lot sited on the east side of the block between Mifflin Street and McKean Street. Designed by Here’s The Plan, LLC, the building will span 2,200 square feet and will feature a basement and a roof deck. Permits list Hazbi Daku and Renato Rizaj as owners, with the latter also specified as the contractor.
The total construction cost is indicated at $205,000, translating to an average cost of $93 per buildable interior square foot. The total includes $166,000 allocated for general construction work, $10,000 for electrical work, $10,000 for mechanical work, and $19,000 for plumbing work.

1937 South Hemberger Street. Site map. Credit: Here’s The Plan, LLC via the City of Philadelphia

1937 South Hemberger Street. Aerial view of site conditions prior to redevelopment. Credit: Here’s The Plan, LLC via the City of Philadelphia

1937 South Hemberger Street. Site plan. Credit: Here’s The Plan, LLC via the City of Philadelphia
The proposed building will fill a gap within a tight, cozily built-up, rowhouse-lined block on the extra-narrow South Hemberger Street, where the roadway spans mere 14 feet in width and the sidewalks measure just eight feet across. Two-story prewar rowhouses line either side of the street, fronted with covered porches. The block has managed to retain much of its original building stock during the postwar years, and the structure at 1937 South Hemberger Street will fill one of the few available gaps.

1937 South Hemberger Street. Site conditions prior to redevelopment. Looking north. Credit: Here’s The Plan, LLC via the City of Philadelphia

1937 South Hemberger Street. Site conditions prior to redevelopment. Looking south. Credit: Here’s The Plan, LLC via the City of Philadelphia
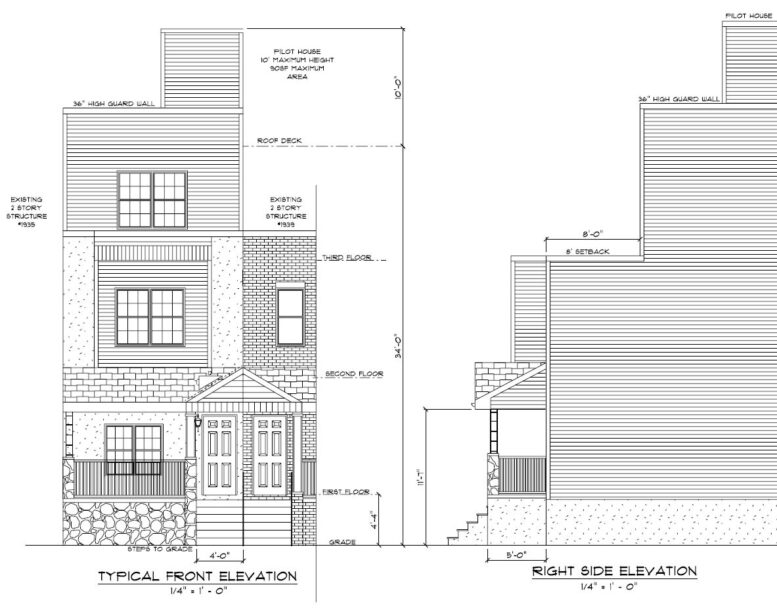
In a delightfully contextual design gesture, the new building will feature a five-foot-deep covered porch situated atop a four-and-a-half-foot-high base clad in rusticated stone. A shingled half-dormer will cap the entry, and an eight-foot-deep third-story setback will ensure that the third floor does not visually intrude upon the street’s prevailing two-story rowhouse composition. The 14-foot-wide, 45-foot-long structure will rise 34 feet to the main roof, a prominent height that will likely bestow the roof deck with considerable skyline views, and 44 feet to the top of the roof access pilot house. A nine-foot-deep yard will sit at the rear of the property.
Smith Playground, situated within a six-minute walk to the southwest, is the most proximate green space to the proposal site. Route 7 and 79 buses run in the vicinity. Passyunk Avenue, a vibrant commercial and dining thoroughfare, runs within a 20-minute walk to the east, where the Snyder station on the Broad Street subway line may also be accessed.

1937 South Hemberger Street. Plan detail for second floor bay bump out. Credit: Here’s The Plan, LLC via the City of Philadelphia

1937 South Hemberger Street. Zoning table. Credit: Here’s The Plan, LLC via the City of Philadelphia
Subscribe to YIMBY’s daily e-mail
Follow YIMBYgram for real-time photo updates
Like YIMBY on Facebook
Follow YIMBY’s Twitter for the latest in YIMBYnews






Love the DayGlo orange on the house next door.
I think this is on the same block as the famous nosey house