A new residential development is moving forward at 6327 Musgrave Street in the Germantown neighborhood of Northwest Philadelphia, where a construction permit has been issued for a four-story, 67-unit apartment building with a cellar and green roof. Total construction area is listed at approximately 58,730 square feet. The issuance of the building permit follows earlier zoning approvals for the project. East Germantown Lofts LLC is listed as the development owner, with KJO Architecture responsible for design and Liberty Star Management Inc. listed as the contractor.
Construction costs for the project are listed at approximately $6.1 million, which includes $6.0 million allocated to general construction and $100,000 attributed for excavation work.
Permit records classify the project under Group R-2 residential occupancy, with an area of 19,731 square feet recorded for earth disturbance.

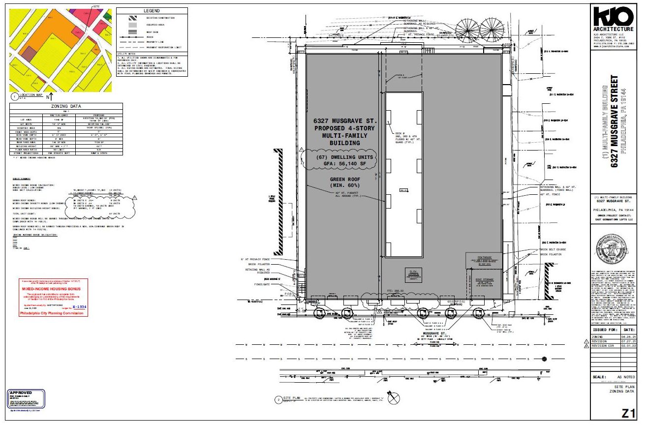
6327 Musgrave Street. Zoning submission. Credit: KJO Architecture via the City of Philadelphia
The development makes use of both green roof and mixed-income housing zoning bonuses. Approved plans call for a green roof covering roughly 60 percent of the roof area, along with additional height allowances granted through the mixed-income housing provisions of the Philadelphia Zoning Code. Zoning approvals also list a roof deck accessed by a pilot house with an elevator overrun, as well as balconies located at the second, third, and fourth floors.

6327 Musgrave Street. Rendering credit: KJO Architecture
Renderings illustrate a building clad primarily in brick, with a lighter-colored base at the ground level and darker upper-story massing above. The façade will be articulated via projecting and recessed balconies that will create a varied rhythm across the elevation, with several units featuring inset outdoor spaces enclosed by metal and glass railings. Window openings will be arranged in a regular but non-uniform pattern, reflecting internal unit layouts, while the roofline will be kept flat and restrained. Overall, the design presents a contemporary multi-family form that maintains a consistent street wall along Musgrave Street while introducing depth through balcony projections and material contrast.

6327 Musgrave Street. Rendering credit: KJO Architecture
The zoning permit associated with the development was issued in June 2022, while the newly issued construction permit reflects the completion of prerequisite approvals needed to advance the project toward ground-breaking.
With construction authorization now in place, the development at 6327 Musgrave Street represents the next phase of a promising mixed-income residential project that will make for a welcome addition to the neighborhood.
Subscribe to YIMBY’s daily e-mail
![]()
Follow YIMBYgram for real-time photo updates
Like YIMBY on Facebook
Follow YIMBY’s Twitter for the latest in YIMBYnews






The courtyard will foster community.