Permits Issued for Single-Family Home at 2211 West Thompson Street in Cecil B. Moore, North Philadelphia
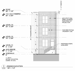
Permits have been issued for a new residential project at 2211 West Thompson Street in Cecil B. Moore, North Philadelphia. The project calls for the construction of a three-story attached structure on a vacant parcel fronting West Thompson Street. Records list the Civetta Property Group as the property owner. Architectural plans were prepared by Moto Designshop. Spruce Builders LLC is identified as the contractor.

