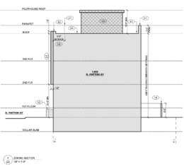
Permits Issued for New Residence at 1403 South Patton Street in Grays Ferry, South Philadelphia
Permits have been issued for the construction of a three-story single-family rowhouse at 1403 South Patton Street in Grays Ferry, South Philadelphia. Permits list Harman Deutsch Ohler Architecture listed as the design firm and NFR Developments LLC as contractor.

