A recent submission to the Philadelphia City Planning Commission’s Civic Design Review committee reveals details for a six-story, 75-unit adaptive reuse residential development planned at 3408 B Street in Kensington. the development team consists of Dwight City Group as the developer, Raymong F. Rola as the architect, Quantum Engineering Consultancy as the structural engineer, and Hutec Engineering as the MEP and civil engineer.
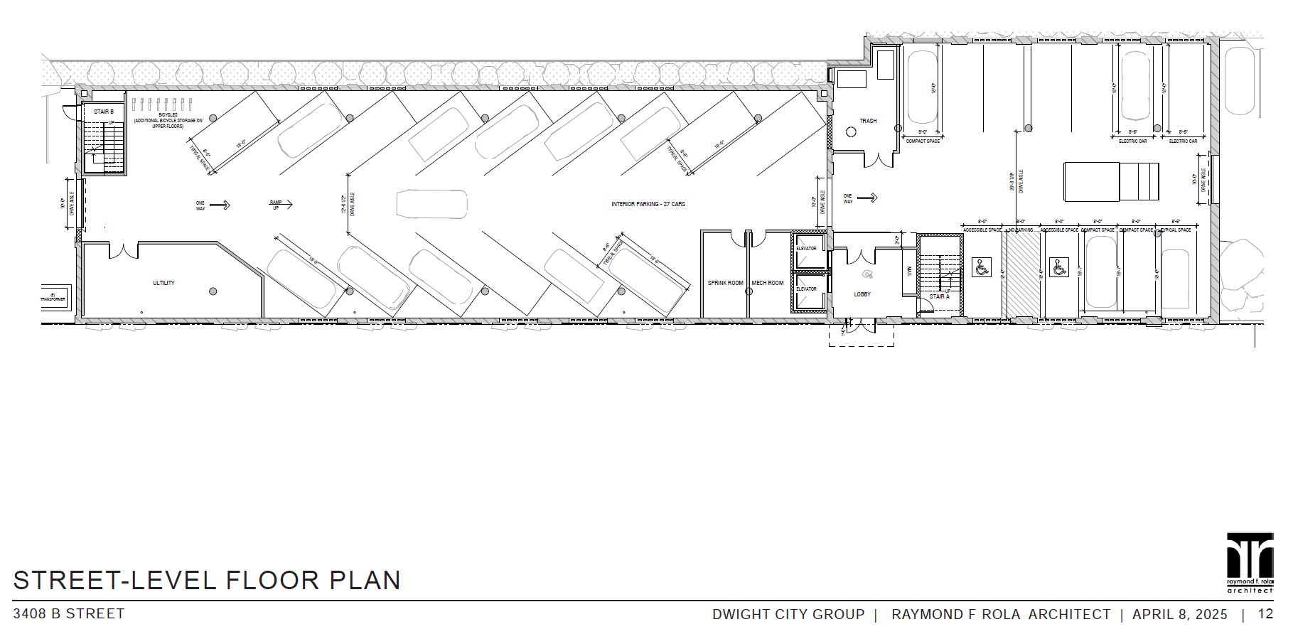
The submission describes the development as follows: “The proposal is to reuse the existing structure and build an additional four-stories, bringing the total height to 6-stories at 71 feet and 7 inches. There is a proposed number of 75 units; 60 one bedroom units and 15 two bedroom units. 38 parking spaces are proposed with 25 additional spaces for bicycles. Above the 6th floor is a proposed roof deck setback from the front and rear property lines to provide open recreation space.”

3408 B Street. Credit: Raymond F Rola Architect via the Civic Design Review by the Philadelphia City Planning Commission and the Department of Planning and Development

3408 B Street. Credit: Raymond F Rola Architect via the Civic Design Review by the Philadelphia City Planning Commission and the Department of Planning and Development

3408 B Street. Credit: Raymond F Rola Architect via the Civic Design Review by the Philadelphia City Planning Commission and the Department of Planning and Development

3408 B Street. Credit: Raymond F Rola Architect via the Civic Design Review by the Philadelphia City Planning Commission and the Department of Planning and Development

3408 B Street. Credit: Raymond F Rola Architect via the Civic Design Review by the Philadelphia City Planning Commission and the Department of Planning and Development

3408 B Street. Credit: Raymond F Rola Architect via the Civic Design Review by the Philadelphia City Planning Commission and the Department of Planning and Development

3408 B Street. Credit: Raymond F Rola Architect via the Civic Design Review by the Philadelphia City Planning Commission and the Department of Planning and Development

3408 B Street. Credit: Raymond F Rola Architect via the Civic Design Review by the Philadelphia City Planning Commission and the Department of Planning and Development

3408 B Street. Credit: Raymond F Rola Architect via the Civic Design Review by the Philadelphia City Planning Commission and the Department of Planning and Development

3408 B Street. Credit: Raymond F Rola Architect via the Civic Design Review by the Philadelphia City Planning Commission and the Department of Planning and Development

3408 B Street. Credit: Raymond F Rola Architect via the Civic Design Review by the Philadelphia City Planning Commission and the Department of Planning and Development

3408 B Street. Credit: Raymond F Rola Architect via the Civic Design Review by the Philadelphia City Planning Commission and the Department of Planning and Development

3408 B Street. Credit: Raymond F Rola Architect via the Civic Design Review by the Philadelphia City Planning Commission and the Department of Planning and Development
Subscribe to YIMBY’s daily e-mail
![]()
Follow YIMBYgram for real-time photo updates
Like YIMBY on Facebook
Follow YIMBY’s Twitter for the latest in YIMBYnews


Be the first to comment on "Details Revealed for Adaptive Reuse Development at 3408 B Street in Kensington"