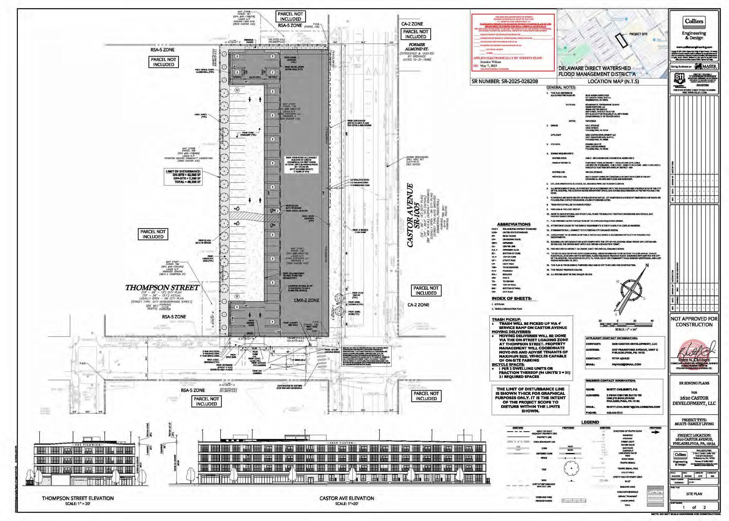
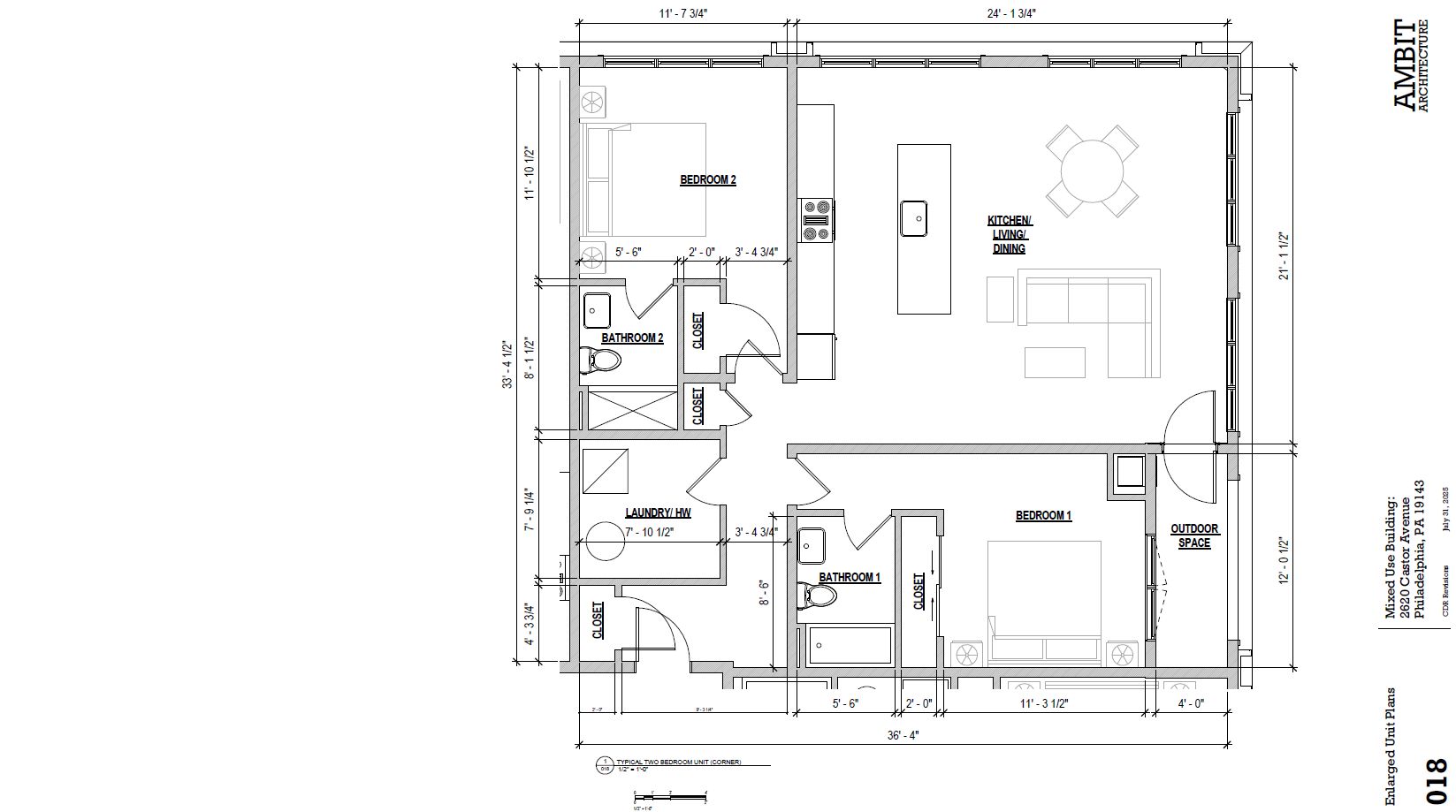
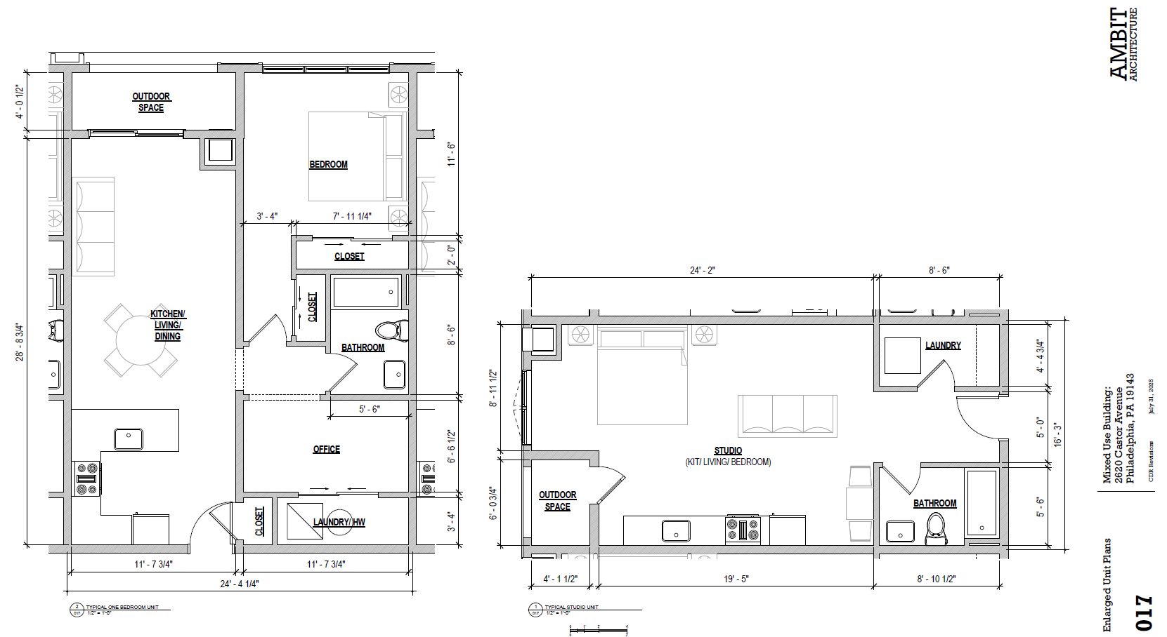
A recent submission to the Philadelphia City Planning Commission’s Civic Design Review committee reveals floor plans and unit layouts for The Pickwick, a multi-family building planned at 2620 Castor Avenue in Port Richmond, a development YIMBY covered in an earlier publication. The development team includes Ambit Architecture and Colliers Engineering & Design.

2620 Castor Avenue. Credit: Ambit Architecture via the Civic Design Review by the Philadelphia City Planning Commission and the Department of Planning and Development

2620 Castor Avenue. Credit: Ambit Architecture via the Civic Design Review by the Philadelphia City Planning Commission and the Department of Planning and Development

2620 Castor Avenue. Credit: Ambit Architecture via the Civic Design Review by the Philadelphia City Planning Commission and the Department of Planning and Development

2620 Castor Avenue. Credit: Ambit Architecture via the Civic Design Review by the Philadelphia City Planning Commission and the Department of Planning and Development

2620 Castor Avenue. Credit: Ambit Architecture via the Civic Design Review by the Philadelphia City Planning Commission and the Department of Planning and Development

2620 Castor Avenue. Credit: Ambit Architecture via the Civic Design Review by the Philadelphia City Planning Commission and the Department of Planning and Development

2620 Castor Avenue. Credit: Ambit Architecture via the Civic Design Review by the Philadelphia City Planning Commission and the Department of Planning and Development

2620 Castor Avenue. Credit: Ambit Architecture via the Civic Design Review by the Philadelphia City Planning Commission and the Department of Planning and Development

2620 Castor Avenue. Credit: Ambit Architecture via the Civic Design Review by the Philadelphia City Planning Commission and the Department of Planning and Development

2620 Castor Avenue. Credit: Ambit Architecture via the Civic Design Review by the Philadelphia City Planning Commission and the Department of Planning and Development

2620 Castor Avenue. Credit: Ambit Architecture via the Civic Design Review by the Philadelphia City Planning Commission and the Department of Planning and Development
Subscribe to YIMBY’s daily e-mail
![]()
Follow YIMBYgram for real-time photo updates
Like YIMBY on Facebook
Follow YIMBY’s Twitter for the latest in YIMBYnews


Be the first to comment on "Floor and Unit Plans Unveiled for The Pickwick at 2620 Castor Avenue in Port Richmond"