A new residential project has been proposed for construction at 4265 Mantua Avenue in the East Parkside section of West Philadelphia. The project proposes an attached three-story multi-family building with a full basement and occupiable roof deck on a vacant parcel fronting Mantua Avenue. Permit records identify ATA 7 Real Estate Sales & as the property owner. Architectural plans were prepared by 24/Seven Design Group LLC, with City Life Construction LLC listed as the contractor.
Permit records list total construction costs at approximately $550,000, including $525,000 for general construction and $25,000 for excavation work.
Construction permits describe the development as a four-unit residential building classified as R-2 occupancy. The structure will rise three stories above grade with a full basement below and will be built using wood-frame construction over reinforced concrete foundations. The building will be fully sprinklered in accordance with NFPA 13 requirements, with separate permits required for mechanical, electrical, plumbing, and fire suppression systems. No on-site parking is proposed.

4265 Mantua Avenue Plan via 24/7 Design Group
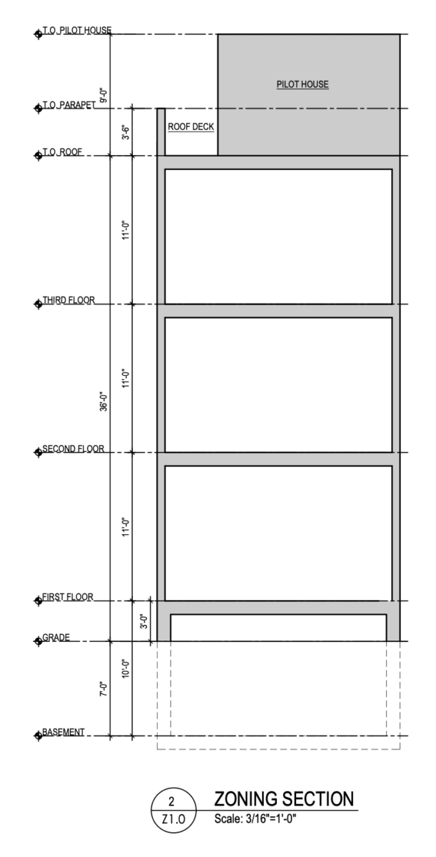
Zoning approvals allow the project to proceed within an RM-1 residential zoning district. Plans indicate a lot area of approximately 1,552 square feet, with a proposed building footprint of 1,163 square feet, representing 74.94 percent lot coverage. The structure will reach a height of 36 feet, remaining below the 38-foot maximum permitted by zoning. A rear yard depth of 22 feet and 330 square feet of rear open area are provided, along with a small light well serving the interior.
Architectural drawings depict a vertically stacked residential building organized around stair-only circulation. A raised ground-floor entry is accessed by exterior steps from the sidewalk and includes a street-facing porch aligned with neighboring properties. The roof level contains an occupiable roof deck served by two compact pilot house stair enclosures, each kept below the maximum area threshold. Rear elevations illustrate basement egress features and yard access consistent with zoning requirements.
A zoning permit allowing the development was issued in May 2023, followed by a building permit approved in December 2025. A construction timeline has not yet been announced.
Subscribe to YIMBY’s daily e-mail
Follow YIMBYgram for real-time photo updates
Like YIMBY on Facebook
Follow YIMBY’s Twitter for the latest in YIMBYnews






It gives one pause when the site plan displays the wrong address.