Permits have been issued for the construction of a three-story, five-unit multi-family development at 824 North 40th Street in Belmont, West Philadelphia. The attached structure will rise from a presently vacant parcel and will feature a full basement as well as a roof deck. Architectural plans were prepared by Plato Studio. Yona Construction is listed as the contractor.
Permit documentation lists 824 N 40th Street LLC as the property owner and specifies total construction costs at $500,000, which includes $400,000 for general construction and $100,000 for excavation work.

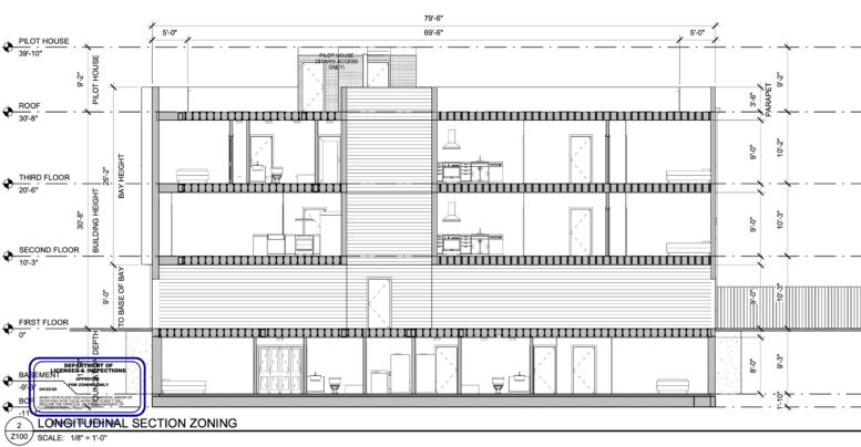
824 North 40th Street Plan via Plato Studio
The structure, located within an RM-1 residential zoning district, will be classified as R-2 occupancy, and will be fully sprinklered in accordance with NFPA 13R. No on-site parking is proposed.
The structure will not exceed 38 feet in height. Plans indicate a rear yard depth of around 27 feet and a total area measuring aproximately 514 square feet, meeting zoning requirements.
Architectural drawings depict a vertically stacked residential building. The front facade will be composed primarily of masonry, with regularly aligned window openings across all floors. A raised ground-floor entry will be accessed via exterior steps and will incorporate a covered porch. A parapet will conceal the roof deck and a pilot house used for stair access. Rear elevations illustrate basement egress elements and rear yard access.
No construction timeline has yet been announced.
Subscribe to YIMBY’s daily e-mail
![]()
Follow YIMBYgram for real-time photo updates
Like YIMBY on Facebook
Follow YIMBY’s Twitter for the latest in YIMBYnews






One of the most common (and often unavoidable) reasons for Philadelphia’s tree canopy fall-off is the development of treed vacant lots. 824 North 40th Street is an example.
Are these dinky little rowhouses the only development going on in Philly? It seems that’s the only thing on yimby this past year. There gotta be a lot more going on than that.
There is a lot more going on from projects that pulled permits years ago, but YIMBYPhilly has been doing way less in-person updates.
Then there was a big multi-family slowdown due to economic and material cost factors, which is often a boom time for SFH instead, which have been a majority of permits since.
More large scale projects are starting to pick back up that have been in limbo.
One by one they are filling the vacant lots all over and adding one to five or so living spaces. They recomplete the streetscape with modern buildings and the numbers add up. Trees or no trees vacant lots are wounds.