Permits have been issued for the construction of a four-story mixed-use building with 51 residential units, along with ground-floor commercial space, at 704 East Passyunk Avenue in Queen Village, South Philadelphia. The plan lists a gross floor area of approximately 19,505 square feet. Proposed work includes partial demolition of an existing single-story structure. Project documentation lists P & F Retail Associates L P as the property owner, with building design provided by Assimilation Design Lab LLC.
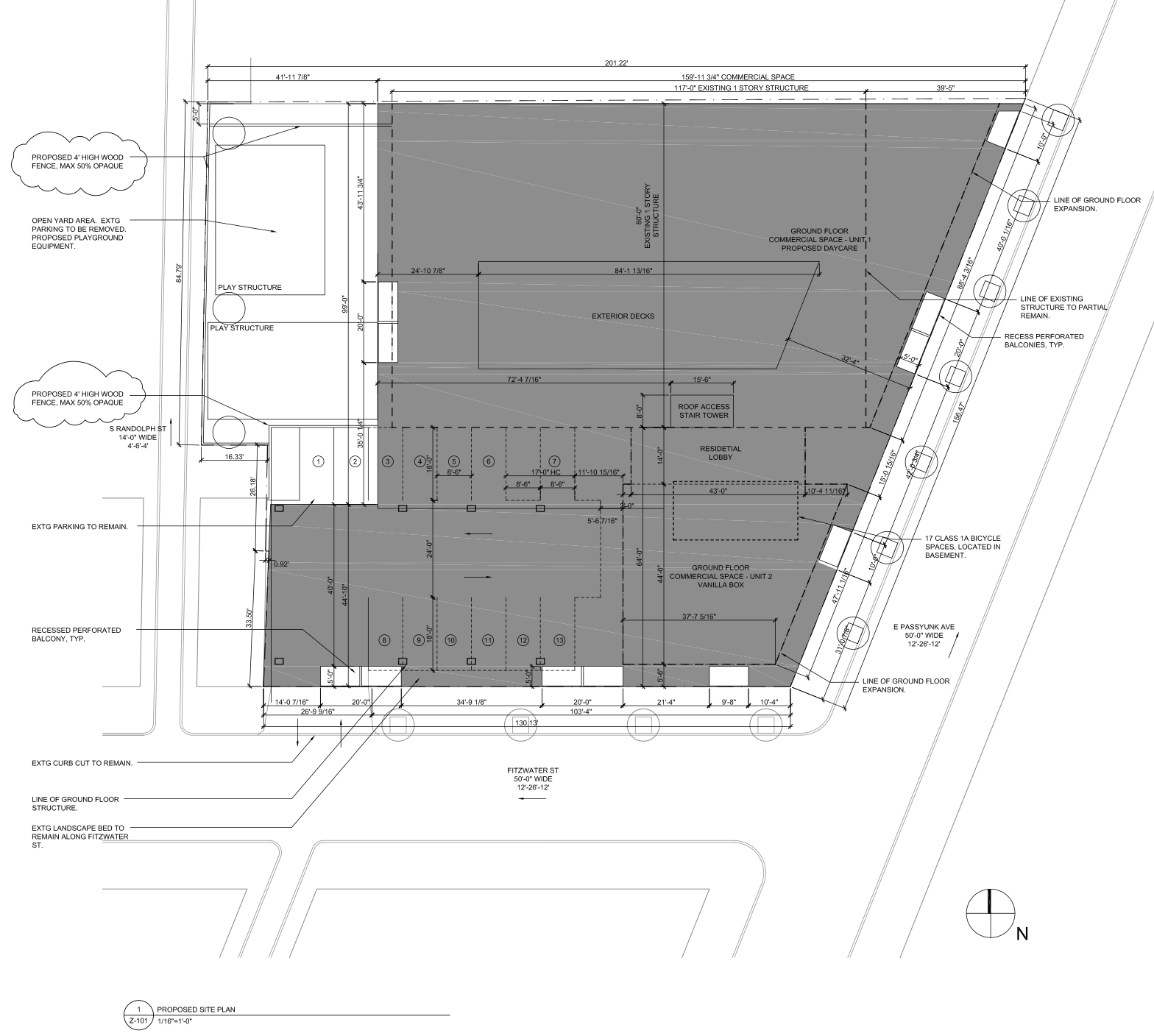
The approved scope of work allows for partial demolition of an existing structure while retaining the existing parking lot and its access point. A residential lobby is proposed at the ground level, with residential space above. The zoning permit also identifies proposed exterior decks and recessed balconies.

704 Passyunk Avenue Site Plan via Assimilation Design Lab
Permit documents place the site within a CMX-2 zoning district on a parcel measuring approximately 25,070 square feet. The proposed open area of roughly 5,565 square feet exceeds the minimum open area requirement for the district. The building height is shown at 38 feet, consistent with the maximum height permitted under CMX-2 zoning regulations.

704 Passyunk Avenue South Elevation via Assimilation Design Lab
Architectural drawings depict a contemporary four-story structure upon the irregular corner site, with recessed balconies and exterior deck spaces distributed along the building frontage. Elevations indicate a masonry-based façade with regularly spaced window groupings, and the roof includes a roof access structure. A total of 17 Class 1A bicycle spaces will be provided in the basement.
Subscribe to YIMBY’s daily e-mail
![]()
Follow YIMBYgram for real-time photo updates
Like YIMBY on Facebook
Follow YIMBY’s Twitter for the latest in YIMBYnews






Rite Aid’s bankruptcy has provided the opportunity to redevelop numerous sites around the region. This venture in dense Queen Village is one.
Instead of a one story, pedestrian, brick and stucco, single use structure characteristic of suburbia, property owner P & F Retail Associates and design team Assimilation Design Lab plan a four story mixed use project. In addition to 51 residential units providing housing for perhaps 75 people, there are two commercial spaces, one a day care center, and an outdoor playground.
Virtually all 30 vehicle surface parking is eliminated. Rather, there are 13 mostly covered first floor auto spaces and 17 basement bicycle sites. Unfortunately, those 13 spots and requisite drive aisle necessitate a blank wall along most of Fitzwater Street, which could have been obviated by an underground garage.
Still better than wrap-around surface parking.