A zoning permit has been issued for the construction of a new multi-family residential building at 5661 Sprague Street in Northwest Philadelphia. The project site is currently a vacant lot spanning 2,543 square feet, and the approved plans call for the erection of an attached structure containing six dwelling units. J2A Architects is responsible for the design, REB Shayeles Builders LLC is listed as the contractor, and the property is owned by 5661 Sprague St LLC.
The project carries a reported construction cost of approximately $4.5 million.

5661 Sprague Street Roof Plan via J2A Architects
The development will rise three stories and include a total construction area of 7,360 square feet. The structure is classified as R-2 residential occupancy. Approved plans also show three roof access structures leading to occupiable roof decks assigned to individual units. No off-street parking is required for the project under current zoning regulations.
The zoning permit was issued in October, 2025, and authorizes the erection of an attached structure with roof deck and roof deck access structure, as shown in the approved plans.

5661 Sprague Street Plan via J2A Architects
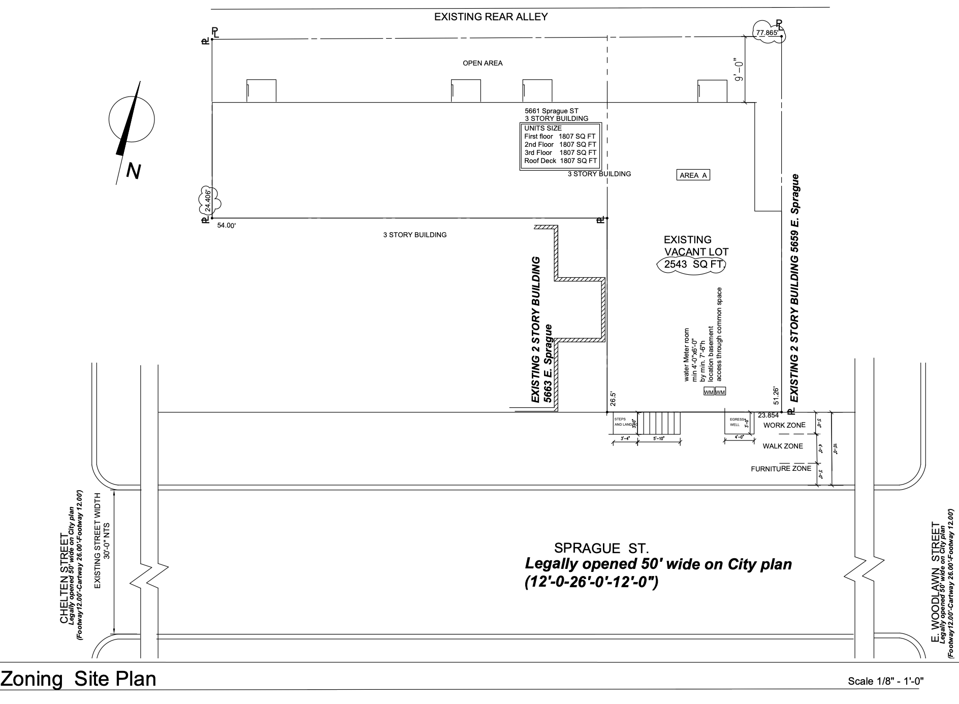
The site is zoned RM-1, where the plans indicate that six units are permitted on the 2,543-square-foot parcel, matching the proposed density. The allowable building height is 38 feet, while the structure is planned to rise to 37 feet 6 inches at the top of the roof. Open area requirements call for 636.25 square feet, and the plans provide 757.21 square feet. Lot occupancy is capped at 75 percent, or 1,907.25 square feet, while the proposal shows 1,785.67 square feet of occupied area.

5661 Sprague Street Location Map via J2A Architects
Architectural drawings show a vertically organized three-story attached building with the main entrance reached by front steps and a landing. The front elevation includes a masonry-patterned base, a brick-patterned middle section, and a horizontally clad upper story, with evenly arranged window openings across the facade. The roof plan shows parapet walls, railings around the deck areas, and three pilot house structures tied to the upper-level roof decks. The zoning summary also indicates a required rear yard of nine feet.
The proposal would replace a vacant lot with new multi-family housing, adding infill density within the limits established by the site’s RM-1 zoning.
Subscribe to YIMBY’s daily e-mail
![]()
Follow YIMBYgram for real-time photo updates
Like YIMBY on Facebook
Follow YIMBY’s Twitter for the latest in YIMBYnews


So unfitting for the neighborhood of 2-story houses!
Get use to it. You’re not in a subdivision in the middle of a corn field. You’re complaining about new just 6 units in the middle? This is exactly what the kind of new infills that Philly needs , to have more housing for more people and support businesses, and maintaining the neighborhoods. Philly is falling way behind in every metric. It can’t just keep on with arbitrary zoning like that encourage building 14 feet wide rowhouses like it’s 1770.
The site plan shows an unusual layout, whereby newly constructed 5661 Sprague St. appears to extend into what would typically be the backyards of its neighbors at 5663 and 5665 Sprague St., creating an “L” shaped edifice, expanding living space to 7,360 square feet, and allowing a larger number of residential units.
Even so, $750,000 per unit seems exorbitant.
They are trying to not just change the type of housing but the demographics of the neighborhood.