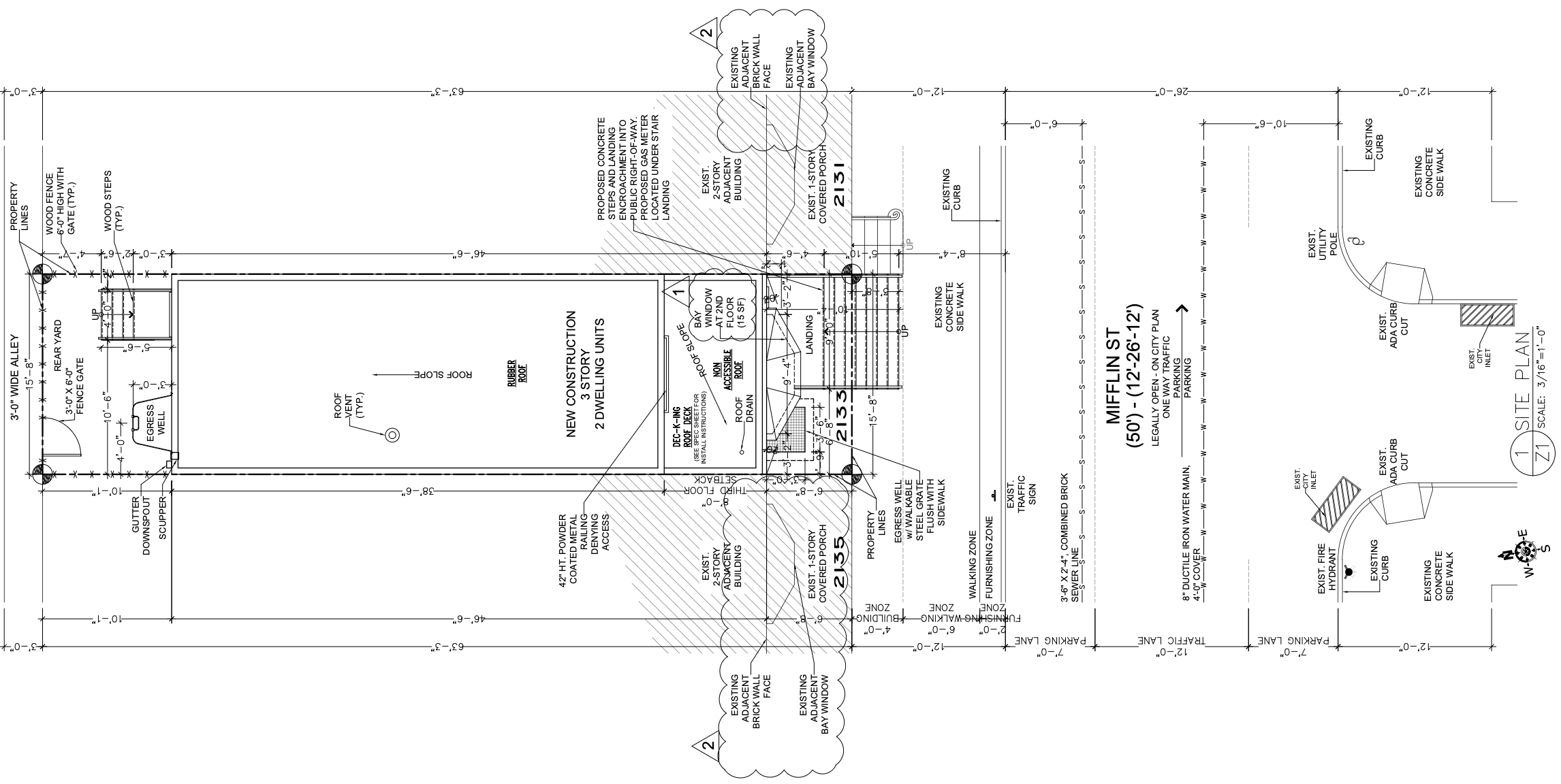
A zoning permit has been issued for the construction of a new two-family residential building at 2133 Mifflin Street in West Passyunk, South Philadelphia. The project site is currently a vacant lot measuring 990.91 square feet, and the approved plans call for the erection of an attached three-story structure with two dwelling units. The property is owned by Green Tomato LLC. Philly Plans is responsible for the designs. Platinum Construction and Development is the contractor.
The project carries a total construction cost of $300,000, with an indicated breakdown of $226,000 in general construction costs, along with $30,000 for excavation, $21,000 for plumbing, $12,000 for mechanical work, and $11,000 for electrical work.

2133 Mifflin Street Site Plan via Philly Plans
The development will rise three stories and include a total construction area of 2,399 square feet. The structure is classified as R-3 residential occupancy. Permit documents specify that no occupiable roof deck is included in the project scope. The site is zoned RM-1. Zoning data indicates a minimum lot area requirement of 1,440 square feet, while the existing lot measures 990.91 square feet. The proposal includes 743.18 square feet of occupied area, representing 75 percent lot coverage, and 247.73 square feet of open area, representing 25 percent of the lot. A rear yard setback of 10 feet 1 inch is provided, exceeding the minimum requirement of 9 feet. The proposed building height is 36 feet 6 inches, below the maximum permitted height of 38 feet.

2133 Mifflin Street Rear Elevation via Philly Plans
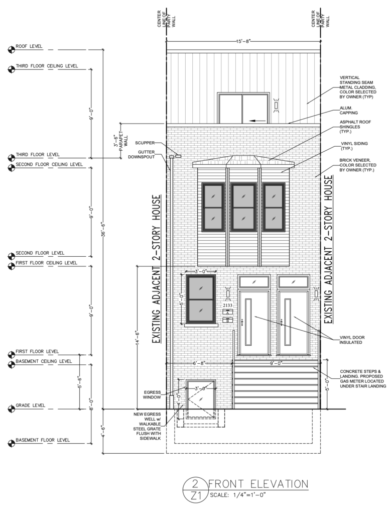
Architectural drawings show a three-story attached structure with a front entry accessed by a set of concrete steps and landing. The front elevation includes a brick veneer lower and middle portion, with a projecting bay at the second floor, and a vertically oriented cladding treatment at the upper level. The drawings label materials including brick veneer, vinyl siding, and vertical standing seam metal cladding. The roof is shown as a sloped surface with asphalt shingles. The rear elevation shows a vertically aligned window arrangement and a rear yard area enclosed by fencing, along with an egress well at the basement level.
The project will replace a vacant lot with a new two-family residential structure as permitted under RM-1 zoning. The estimated construction timeline has not been released yet.
Subscribe to YIMBY’s daily e-mail
![]()
Follow YIMBYgram for real-time photo updates
Like YIMBY on Facebook
Follow YIMBY’s Twitter for the latest in YIMBYnews






Placing the gas meter under the front stair landing is a clever method of hiding its ugliness. Kudos to design team Philly Plans.