New Two-Family Residence Approved at 2133 Mifflin Street in West Passyunk, South Philadelphia
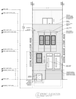
A zoning permit has been issued for the construction of a new two-family residential building at 2133 Mifflin Street in West Passyunk, South Philadelphia. The project site is currently a vacant lot measuring 990.91 square feet, and the approved plans call for the erection of an attached three-story structure with two dwelling units. The property is owned by Green Tomato LLC. Philly Plans is responsible for the designs. Platinum Construction and Development is the contractor.

