A zoning permit has been issued for the construction of a new multi-family residential building at 840 East Chelten Avenue in East Germantown, Northwest Philadelphia. The project site spans 1,909 square feet, and the approved plans call for the erection of an attached three-story structure with four dwelling units. The property is owned by RAM Phila Community 12 LLC. Parallel Architecture Studio is responsible for the designs. Loan Construction LLC is identified as the contractor.
The project carries a total construction cost of $420,000, including $400,000 in general construction costs and $20,000 allocated for excavation.

840 East Chelten Avenue Site Plan via Parallel Architecture Studio
The development will rise three stories and include a total construction area of 2,628 square feet. The structure is classified as R-2 residential occupancy. The approved permit authorizes new construction of an attached building for multi-family household living. The zoning permit was issued in September 2025. The site is zoned RM-1. Zoning calculations indicate that four dwelling units are permitted by right on the 1,908.79-square-foot parcel. The proposed building footprint measures 1,072.19 square feet, representing approximately 56 percent lot coverage, below the maximum permitted 75 percent. The plans provide a rear yard depth of 44 feet 6 inches, exceeding the minimum required 9 feet, and a front setback of 10 feet. The building height is shown at 31 feet 7 inches, below the maximum permitted height of 38 feet.

840 East Chelten Avenue Isometric via Parallel Architecture Studio

840 East Chelten Avenue View via Parallel Architecture Studio
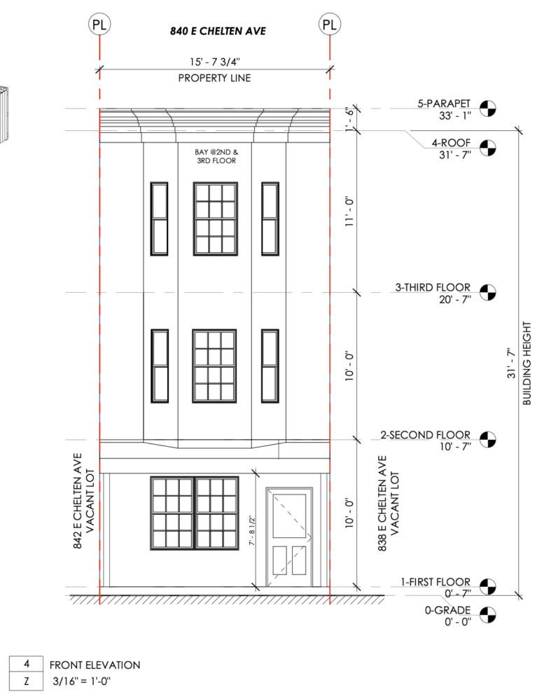
Architectural drawings show a three-story attached structure with a front porch and entry door accessed from the sidewalk. The front elevation includes a projecting bay at the second and third floors, with vertically aligned window openings. The facade is topped by a cornice and parapet, and the roof is shown as a flat surface set behind the parapet. Site plans indicate a rear yard area of approximately 697 square feet enclosed by fencing, with access to a rear alley.

840 East Chelten Avenue Location via Parallel Architecture Studio
The project replaces a vacant lot with a four-unit residential building permitted under RM-1 zoning. The estimated construction timeline has not been revealed yet.
Subscribe to YIMBY’s daily e-mail
![]()
Follow YIMBYgram for real-time photo updates
Like YIMBY on Facebook
Follow YIMBY’s Twitter for the latest in YIMBYnews






By listening carefully, it’s almost possible to hear the 16 foot wide sidewalk crying out for a large shade tree, perhaps a magnificent oak, sycamore or maple.