Permits have been issued for the construction of a new single-family residence at 87 Herman Street in the East Germantown section of Philadelphia. The project site is identified in zoning and site plan drawings as a single parcel proposed for development with a semi-detached single-family structure. ART Enterprise Group LLC is listed as the contractor. 24/7 Design Group is the project architect.
Construction costs are listed at $225,000. This includes $170,000 in general construction costs, $25,000 allocated for excavation, and $10,000 each for electrical, mechanical, and plumbing work.

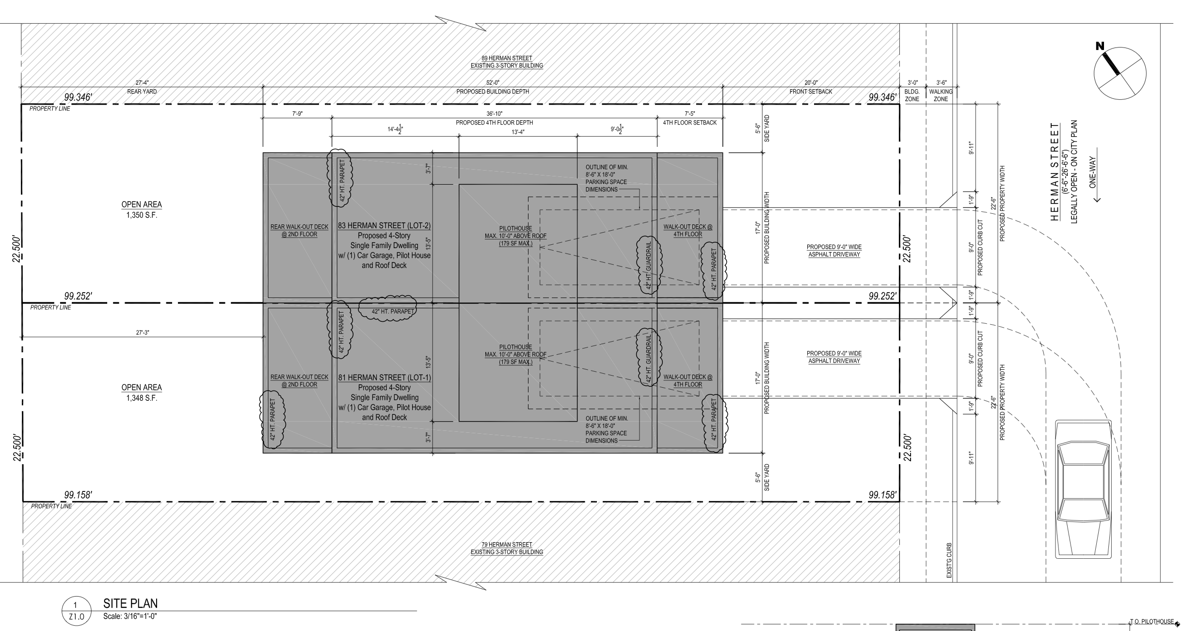
87 Herman Street Plan via 24/7 Design Group
The project is being developed as a one-family residential structure. The approved scope of work calls for the erection of a four-story wood-frame semi-detached structure on reinforced concrete foundations. The building will include a basement level, interior garage parking for one vehicle, and walkout decks located at the second floor and the top floor, as shown in the plans. The structure will be fully sprinklered in accordance with NFPA 13R standards. Total construction area is listed at approximately 3,621 square feet.

87 Herman Street Location Map via 24/7 Design Group
Plans indicate a vertically stacked residential layout with defined floor plates from basement through fourth floor, topped by a roof level with a pilot house structure. The site plan shows driveway access from Herman Street leading to the interior garage, along with designated open space at the rear of the property. A Section drawing confirms a four-story massing with roof access and outdoor deck components integrated into the upper levels.
No construction timeline has been disclosed.
Subscribe to YIMBY’s daily e-mail
![]()
Follow YIMBYgram for real-time photo updates
Like YIMBY on Facebook
Follow YIMBY’s Twitter for the latest in YIMBYnews






A 3,621 square foot home is enormous, and unusual, even in these inflated times.
And in these inflated times, a cost of $225,000 seems deflated.
Indeed.
I have identified this property as:
87 EAST Herman Street.
The “East” is important because omitting that would result in a completely different location.
I have verified this location by comparing this publication with a Satellite View.
I have no further comments on this article.
It says “semi-detached_. From my angle, it looks totally detached! (and WAY too large)