Permits Issued for Three-Unit Residential Building at 1510 North 25th Street in North Philadelphia
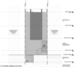
A new residential development is planned at 1510 North 25th Street in North Philadelphia, where permits have been issued for the construction of a three-story attached structure with a basement. The project will introduce three dwelling units on a currently vacant lot, replacing underutilized land with new housing density. Designs for the project are prepared by Kore Architecture, with Olympia Construction LLC listed as the contractor. The property is owned by Olympia Stillman LLC.

