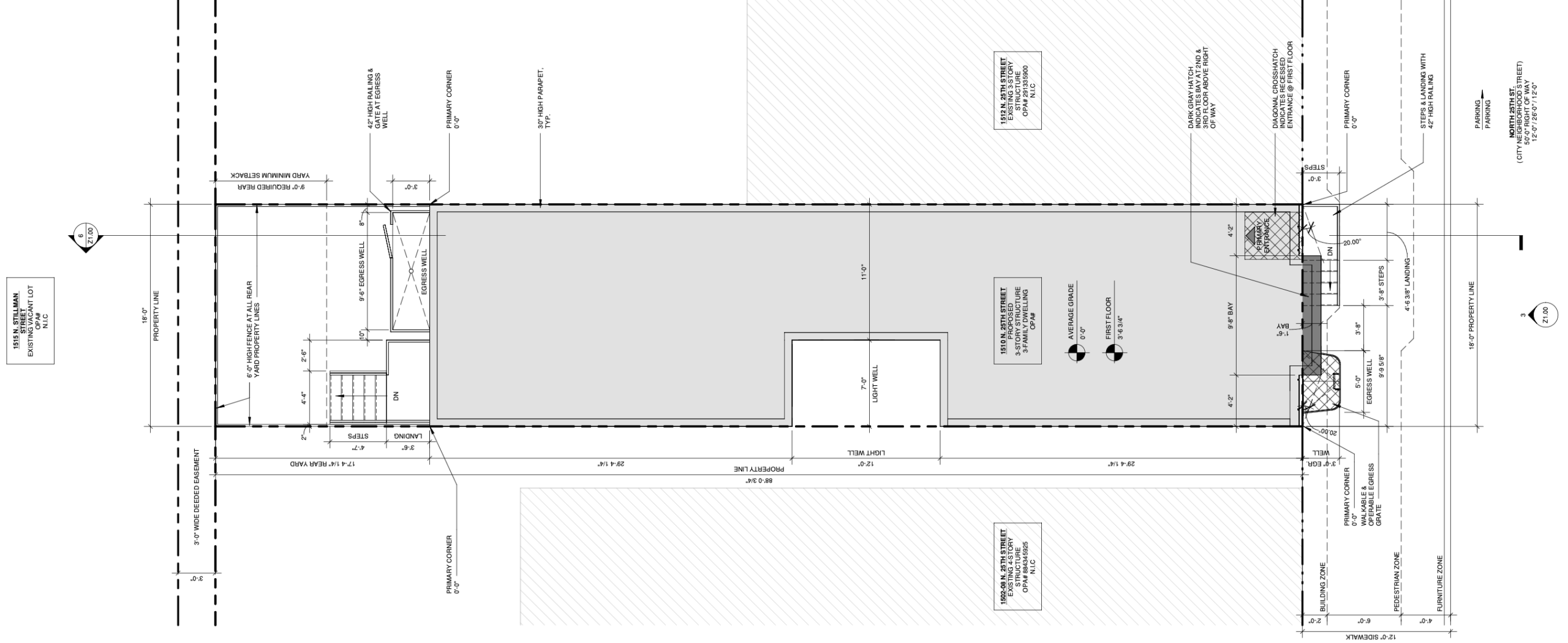
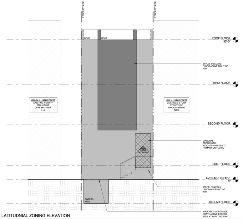
A new residential development is planned at 1510 North 25th Street in North Philadelphia, where permits have been issued for the construction of a three-story attached structure with a basement. The project will introduce three dwelling units on a currently vacant lot, replacing underutilized land with new housing density. Designs for the project are prepared by Kore Architecture, with Olympia Construction LLC listed as the contractor. The property is owned by Olympia Stillman LLC.
Construction costs are listed at approximately $150,000, according to permit filings.

1510 North 25th Street Plan via Kore Architecture
Permit records indicate the building will be configured as a three-family dwelling, with residential occupancy spanning from the basement through the third floor. The structure is classified as Type V-B wood-frame construction and will be fully sprinklered in accordance with NFPA 13 standards. The total construction area is listed at approximately 3,578 square feet.
Zoning documents confirm that the project required relief, as multi-family use with three units is not permitted by right under the RSA-5 zoning designation, necessitating approval through the Zoning Board of Adjustment.

1510 North 25th Street Section via Kore Architecture
Drawings show a straightforward vertical layout, with a full-width building footprint extending along the lot and a rear yard providing open space beyond the structure. A recessed primary entrance is positioned at the front, accessed by a short set of steps, while an egress well at the basement level supports light and ventilation. The building rises to a maximum height of 35 feet, consistent with zoning limits, and incorporates a roof level capped by a parapet.

1510 North 25th Street Location Map via Kore Architecture
The project represents a small-scale infill development within a rowhouse block, adding limited multi-family housing in an area primarily characterized by lower-density residential zoning.
Subscribe to YIMBY’s daily e-mail
![]()
Follow YIMBYgram for real-time photo updates
Like YIMBY on Facebook
Follow YIMBY’s Twitter for the latest in YIMBYnews






Located on the edge of Brewerytown and Sharswood, this 3,758 square foot, three story plus cellar, three unit, residential project is an example of private investment induced by public. Philadelphia Housing Authority’s (PHA) adjacent massive Sharswood, mixed income apartment and townhome redevelopment is nearly complete.
PHA has transformed many nearby blocks from blight and vacancy into a handsome neighborhood. In addition, there’s a recently PHA-opened commercial block on Ridge Avenue with a Grocery Outlet, Santander Bank, an urgent care facility, fitness club, and family medical office.
On either side of 1510 N. 25th St., there are privately constructed residential structures, including four floor 1502 Flats. Other homes on the 1500 block of 25th St., such as 1518 and 1526 N. 25th, have been renovated.
After decades of decay, all this private investment is likely sparked by PHA’s success.