A new commercial development is planned at 624 Snyder Avenue in South Philadelphia, where permits have been issued for the construction of a three-story attached structure. The project replaces existing buildings on the site and will introduce new office space within a CMX-2 zoned corridor. The project is being designed by Toner Architects. Construction will be carried out by MMB Contractors Inc. The property is owned by 624-628 Snyder LLC.
Construction costs are listed at approximately $665,000.

624 Snyder Avenue Existing Elevation via Toner Architects

624 Snyder Avenue Proposed Plan via Toner Architects
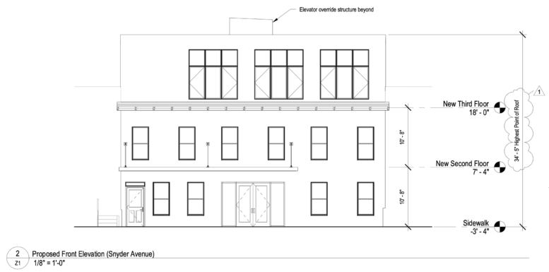
Permit filings indicate that the building will be used for business and professional office occupancy, with approximately 8,502 square feet of new construction. The structure will include office space across the ground floor, second floor, third floor, and basement levels, reflecting a full-building commercial program. The permit also classifies the project as shell construction, with separate permits required for interior mechanical, electrical, plumbing, and fire suppression systems.

624 Snyder Avenue View 1 via Toner Architects
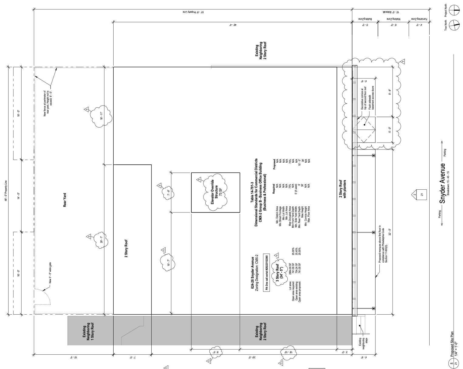
Plans show a three-story wood-frame structure constructed over reinforced concrete foundations, classified as Type V-B construction. The building will include a roof deck accessed from the third floor, along with an elevator override structure above the roofline. Zoning drawings indicate a total building height of approximately 34 feet and 5 inches to the highest point of the roof.

624 Snyder Avenue View 2 via Toner Architects
Site plans confirm that the development will occupy a consolidated lot spanning 624 through 628 Snyder Avenue, with a total lot area of approximately 2,964 square feet. The project maintains the required open space ratio and introduces a rear yard depth exceeding minimum zoning requirements. No off-street parking is proposed.

624 Snyder Avenue Site Map via Toner Architects
The project represents a full replacement of existing structures with a new commercial building, continuing the pattern of small-scale infill development along the Snyder Avenue corridor.
Subscribe to YIMBY’s daily e-mail
![]()
Follow YIMBYgram for real-time photo updates
Like YIMBY on Facebook
Follow YIMBY’s Twitter for the latest in YIMBYnews






Interesting proposal.
A small scale office building across the street from a community swimming pool is interesting.
As with offices, the lack of parking is going to be a challenge for any business owner.
The diagrams are good.
Do you have any renderings?
The previous occupant, Family Dental Care, with its formstone first floor and vinyl second, won’t be missed. Formstone was developed in the 1930s-1940s, often called the “polyester of brick,” and became a signature look for Baltimore rowhomes. Some migrated north to the City of Brotherly Love and Sisterly Affection.
Formstone consists of a cement mix, often containing mica for sparkle, applied over wire mesh, then hand-sculpted into block shapes. While meant to last, formstone can trap moisture, causing the underlying brick to decay, and the rusted nails can cause it to detach. Add the fact that it appears obviously fake and you have a cladding that’s rarely used today.
Since the pandemic and work from home became common, there’s been a ton of vacant office space. It’s likely that this building is not being built on spec — rather, the offices are pre-leased.
I’ve seen the Formstone scourge even made it to NYC particularly Brooklyn. 😂