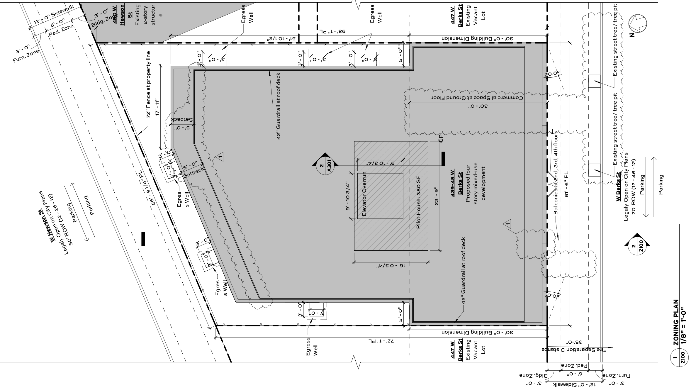
A new mixed-use development is planned at 439-45 West Berks Street in Philadelphia, where permits have been issued for the construction of a four-story attached structure. The project will introduce residential density alongside commercial space on a currently underutilized site within the city’s CMX-2 zoning district. According to permit filings, the building will contain 18 residential units, including four designated as affordable housing. Mass Architecture Studio is responsible for the design, with Apiary Studios listed for landscaping.
Construction costs are specified at $1,240,000, which includes $1,200,000 in general construction and $40,000 allocated for excavation.

439-45 West Berks Street via Mass Architecture Studio
The ground floor will feature a vacant commercial space located at the front of the building, while the remaining floors will be dedicated to multi-family residential use. Additional residential occupancy extends into portions of the basement level, reflecting a fully utilized building envelope across all levels.
The development is planned as a wood-frame structure of construction Type V-A, rising to a height of approximately 46 feet and 6 inches to the top of the roof. A roof deck will be included, accessed by a pilot house and elevator overrun, as shown in the submitted zoning and section drawings.

439-45 West Berks Street Map via Mass Architecture Studio
Site plans indicate a lot area of approximately 5,232 square feet. The project utilizes a mixed-income housing bonus to permit increased unit density, allowing 18 units where fewer would otherwise be permitted. No off-street parking is proposed.
The development represents a mid-scale infill project within North Philadelphia. By combining residential units with ground-floor commercial space and incorporating affordable housing, the project introduces additional housing capacity along the Berks Street corridor.
Subscribe to YIMBY’s daily e-mail
![]()
Follow YIMBYgram for real-time photo updates
Like YIMBY on Facebook
Follow YIMBY’s Twitter for the latest in YIMBYnews


Currently, there are five or six moderate sized shade trees on the lot, 439-45 W. Berks St. Judging from their size and presence in 2007 (as per Google Maps), they are approximately 25-30 years old. With this project, they will be lost.
There is an opportunity to replace several, however, since both W. Berks and W. Hewson streets have furnishing zones just wide enough, three feet, for shade trees. Proof of concept is a recently completed row of townhomes at 411-19 W. Berks, graced with three young street trees.
Well, at least there is plenty of shopping in that neighborhood.
No parking is a dealbreaker, no doubt. 🚘