Permits have been issued for the construction of a new mixed-use building at 2248-50 North Front Street in the Kensington neighborhood in Philadelphia. The project will introduce a three-story attached structure with a cellar, roof deck, and pilot house. The development will contain five residential units along with two commercial spaces planned for artist studios on the lower levels. Property records list Philly Restoration LLC as the owner. SL Construction LLC is listed as the contractor, while FUSA Designs LLC is the project architect.
Permit filings indicate a total construction cost of approximately $450,000, including $400,000 allocated for general construction and $50,000 for excavation work.

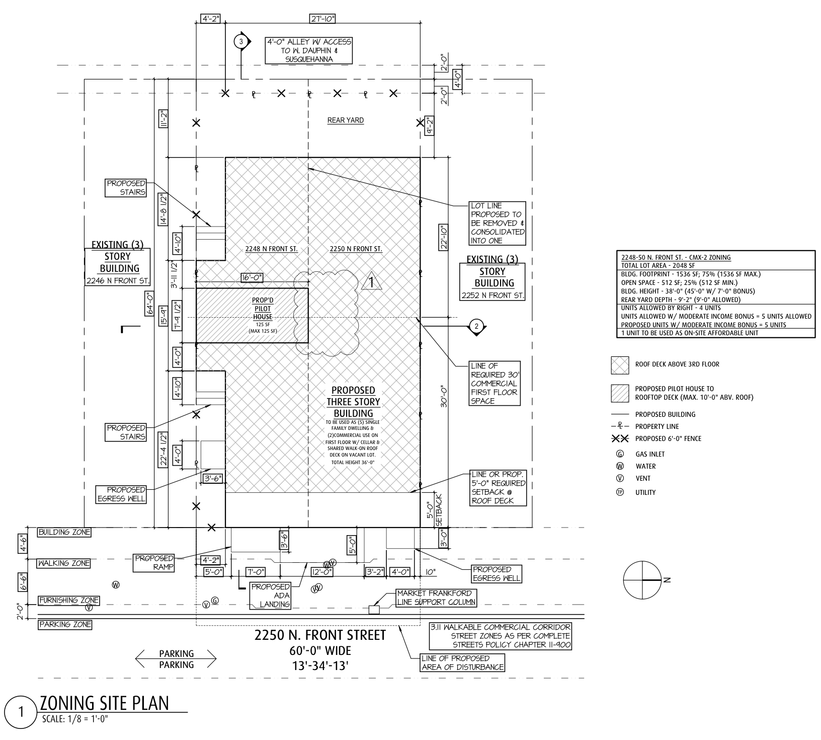
2250 North Front Street Site Plan via Fusa Designs Inc
The development site spans approximately 2,048 square feet and is located within the CMX-2 commercial mixed-use zoning district. Plans call for the consolidation of two lots into a single development parcel. Zoning documents indicate that four residential units are permitted by right, while the project proposes five units through the Moderate Income Housing Bonus, which requires one dwelling to be designated as an on-site affordable unit.
The permit authorizes new construction of a fully sprinklered structure built on reinforced concrete foundations, with separate permits required for mechanical, electrical, plumbing, and fire suppression systems.

2250 North Front Street Section 2 via Fusa Designs Inc
Architectural drawings show a three-story building rising to roughly 36 feet in height, with residential units occupying the upper floors above the commercial space. The ground level and cellar levels will contain the artist studio spaces, while the residential units are arranged across the upper floors. A shared walk-on roof deck with a pilot house enclosure will be located above the third floor.
The issued zoning permit authorizes the erection of the attached structure with the roof deck and access structure as shown in the approved plans, allowing the development at 2248-50 North Front Street to proceed in accordance with the submitted drawings and permit conditions. The estimated construction timeline has not been revealed yet.
Subscribe to YIMBY’s daily e-mail
![]()
Follow YIMBYgram for real-time photo updates
Like YIMBY on Facebook
Follow YIMBY’s Twitter for the latest in YIMBYnews






With Google Maps, July 2025, showing most nearby storefronts empty, Philly Restoration LLC was smart not to add another. Artist studios are more likely to be occupied in the current e-shopping era.
Very nice and convenient to the York-Dauphin station of the Market-Frankford Line.
I’m concerned that this well-written article didn’t mention off-street parking for such a well designed development.