A new residential project has been approved for construction at 3218 North Newkirk Street in Allegheny West, Philadelphia. Permit records indicate plans for the erection of a two-story attached structure with a basement, to be used as a single-family dwelling. The development will occupy a currently vacant lot along a rowhouse block. Global Investment Holding is listed as the developer. 24 Seven Design Group is responsible for the designs.
The cost breakdown includes general construction, mechanical, plumbing, electrical, and excavation work, with total construction cost as $200,000.

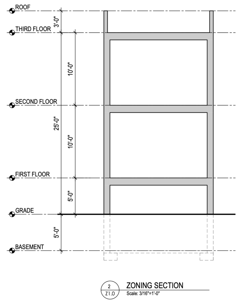
3218 North Newkirk Street Plan via 24 Seven Design Group
Permit filings list the total construction area at approximately 1,198 square feet. Zoning documentation classifies the property within the RSA-5 residential district. The approved use is single-family household living, with the zoning permit confirming authorization for an attached structure as shown in plans. Drawings indicate a lot width of approximately 14 feet 4 inches and a lot area of about 860 square feet. The proposed structure occupies roughly 516 square feet of the lot, representing about 60 percent lot coverage, and provides a rear yard depth of approximately 24 feet.
Architectural plans depict a straightforward vertical arrangement with a basement level beneath two residential floors. Section drawings show floor-to-floor heights organized with approximately 10-foot intervals above grade and a full cellar below. The total building height is indicated at approximately 25 feet, remaining below the 38-foot maximum permitted under zoning. The design includes a front entry accessed by steps from the sidewalk and an egress well at the basement level.
The project introduces a new single-family residence on an infill parcel within an established residential block, maintaining the attached rowhouse pattern while utilizing a previously undeveloped lot.
Subscribe to YIMBY’s daily e-mail
![]()
Follow YIMBYgram for real-time photo updates
Like YIMBY on Facebook
Follow YIMBY’s Twitter for the latest in YIMBYnews






Be the first to comment on "New Single-Family Residence Planned at 3218 North Newkirk Street in Allegheny West"