Permits Issued for Six-Unit Building at 861 North 40th Street In Belmont, West Philadelphia
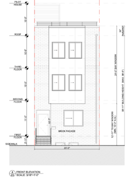
Construction permits have been issued for a new multi-family building at 861 North 40th Street in the Belmont neighborhood of West Philadelphia. The project is approved as a three-story attached structure with a basement, roof deck, and roof deck access structure, classified as R-2 residential occupancy with six dwelling units, including one designated as a Type B dwelling unit. Yona Construction LLC is listed as the contractor, and JTRan Expediting is responsible for the design.
Combined construction costs are reported at $340,000, including $300,000 in general construction and $40,000 allocated for excavation.

