Construction permits have been issued for a new multi-family building at 861 North 40th Street in the Belmont neighborhood of West Philadelphia. The project is approved as a three-story attached structure with a basement, roof deck, and roof deck access structure, classified as R-2 residential occupancy with six dwelling units, including one designated as a Type B dwelling unit. Yona Construction LLC is listed as the contractor, and JTRan Expediting is responsible for the design.
Combined construction costs are reported at $340,000, including $300,000 in general construction and $40,000 allocated for excavation.

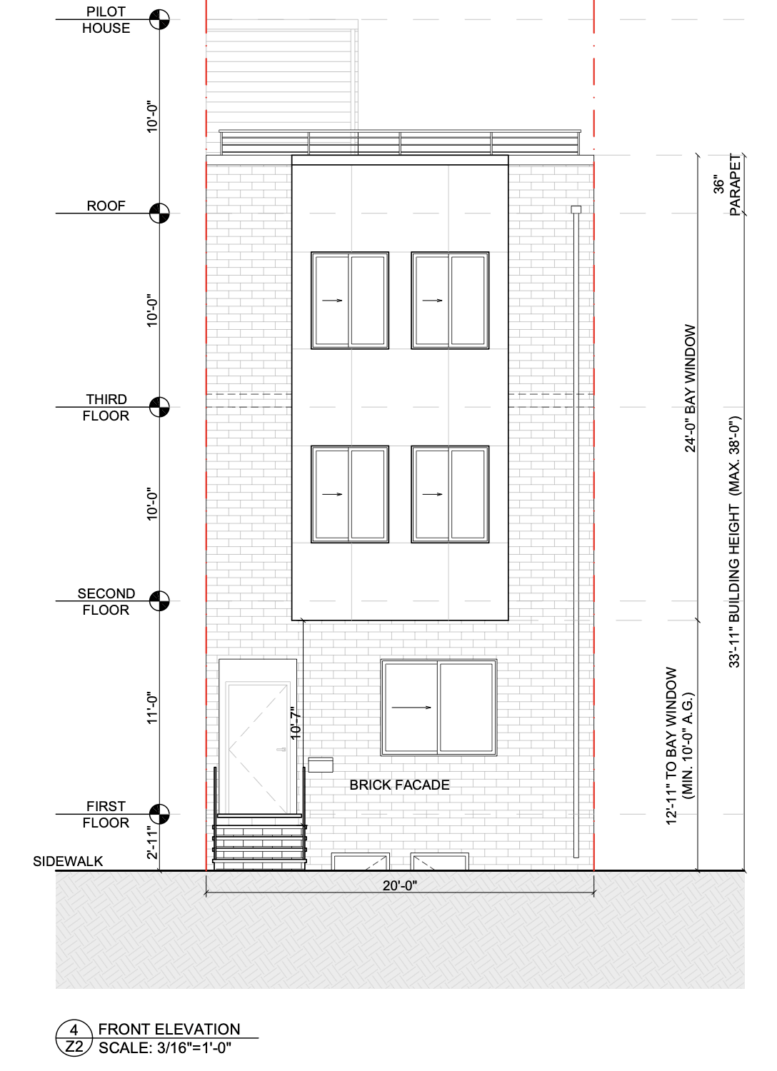
861 North 40th Street Plan via JTRan Expediting
The building permit authorizes the erection of a new three-story structure of Type VB construction for six residential units. Zoning documents show the property is located in the RM-1 district on a 20-foot-wide by 120-foot-deep lot totaling 2,400 square feet. The plans provide 600.63 square feet of open area (25 percent of the lot), and a building footprint of 1,799.37 square feet, (75 percent lot coverage). The approved drawings indicate a 6-foot front setback and an 18-foot 5-inch rear yard depth. The building height is listed at 33 feet 11 inches, below the 38-foot maximum permitted in the district. The permit also requires a covered walkway or sidewalk closure within the building facade.

861 North 40th Street Side Elevation via JTRan Expediting
Elevation drawings depict a contemporary three-story structure with a brick front facade and a vertically oriented bay window element. The upper portions of the building are labeled as vinyl siding. Rear balconies are shown on the second and third floors, and the roof level includes a private roof deck accessed via a pilot house, with notes specifying that the roof deck is accessible only from that enclosed structure.

861 North 40th Street Rear Elevation via JTRan Expediting
Additional notes in the approved zoning set state that the sidewalk in front of the property must be reconstructed to current standards and that no gas will be used in the development. The site is situated several blocks west of the Philadelphia Zoo and near Fairmount Avenue and Girard Avenue corridors, placing it within walking distance of neighborhood commercial activity and public transit routes serving West Philadelphia.

861 North 40th Street Site via JTRan Expediting
With zoning approval and the building permit issued, the six-unit development at 861 North 40th Street is cleared to proceed under the approved plans.
Subscribe to YIMBY’s daily e-mail
![]()
Follow YIMBYgram for real-time photo updates
Like YIMBY on Facebook
Follow YIMBY’s Twitter for the latest in YIMBYnews






That the side elevation incorrectly displays the residence as located on Fairmount Avenue does not generate confidence that there will be a quality outcome.