Zoning approval has been issued for the construction of a new attached single-family residence at 1310 South Ringgold Street in the Grays Ferry section of South Philadelphia. The permit authorizes the erection of an attached three-story structure of Type V-B construction with a cellar, roof deck, and roof deck access structure. AMF Construction Inc is identified as the contractor and KCA Design Associates LLC is the design professional. Boyer Lofts LLC is listed as the owner.
Total construction costs are reported at $317,500, including $235,000 in general construction, $40,000 for excavation, $16,000 for mechanical work, $14,000 for plumbing, and $12,500 for electrical systems.

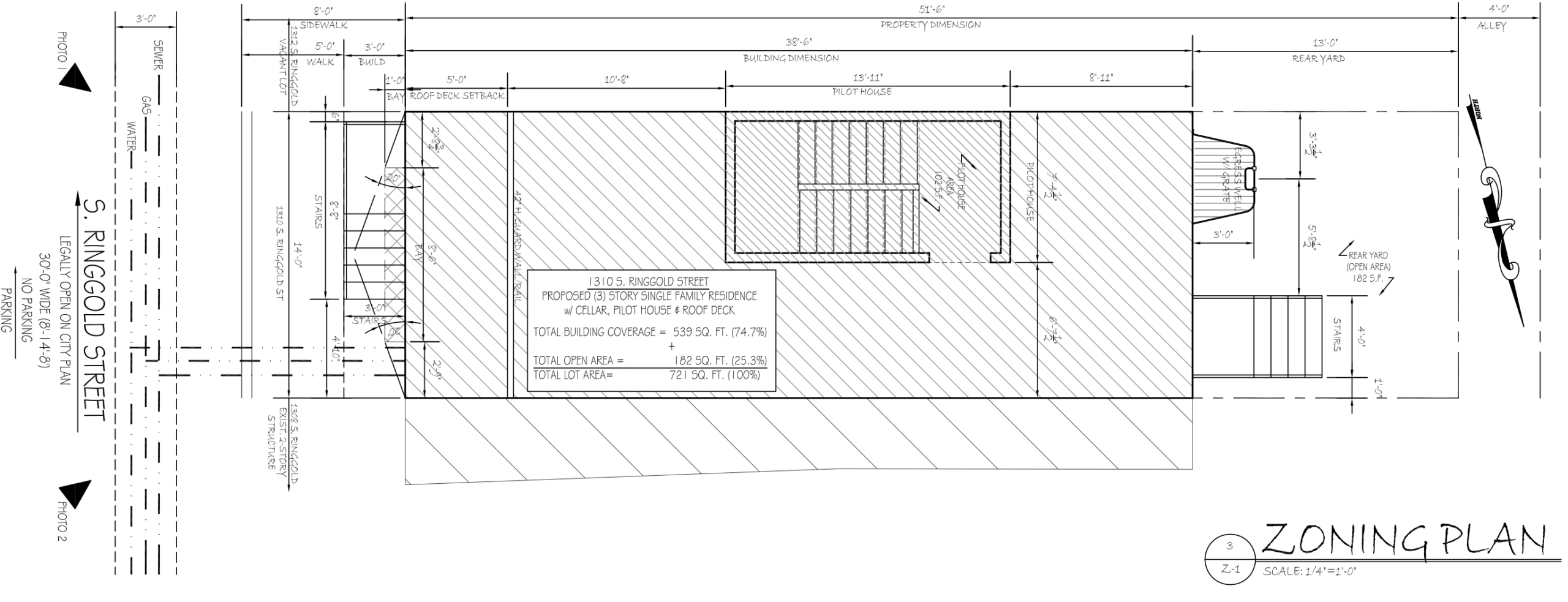
1310 South Ringgold Street Plan via KCA Design Associates LLC
Zoning plans identify a total lot area of 721 square feet. The proposed building footprint measures 539 square feet, representing 74.7 percent lot coverage, below the 75 percent maximum permitted in RSA-5. The plans provide 182 square feet of open area, equal to 25.3 percent of the lot, satisfying the district minimum requirement of 25 percent. Rear yard depth is shown at 13 feet, exceeding the required 9 feet or 10 percent of lot depth. The proposed building height is listed at approximately 36 feet 3 inches, below the 38-foot maximum permitted. The building is classified as Group R-3 residential occupancy. The approved use is Residential-Household Living-Single-Family within the RSA-5 zoning district. Permit documentation lists 2,156 square feet of new construction area and 539 square feet of earth disturbance.
Elevation drawings depict a three-story rowhouse form with a raised first floor accessed by a front stair and landing. The façade is organized with vertically aligned window groupings framed by brick veneer, while the rear elevation shows horizontal siding and stacked window openings. A pilot house structure rises above the main roofline to provide access to the walk-on roof deck, which is set back from the front façade in accordance with the zoning plan.

1310 South Ringgold Street Site via KCA Design Associates LLC
With zoning approval issued and dimensional compliance documented in the approved plans, the single-family residence at 1310 South Ringgold Street is cleared to proceed in accordance with the stamped zoning set.
Subscribe to YIMBY’s daily e-mail
![]()
Follow YIMBYgram for real-time photo updates
Like YIMBY on Facebook
Follow YIMBY’s Twitter for the latest in YIMBYnews






Be the first to comment on "Single-Family Residence with Roof Deck Approved at 1310 South Ringgold Street in Grays Ferry"