A recent submission to the Philadelphia City Planning Commission’s Civic Design Review committee revealed project details for a proposal for an eight-story, 204-unit apartment building at 1318 West Clearfield Street in Glenwood, North Philadelphia. The design team consists of J Paul, Inc. as the developer, CANNOdesign as the architect, Structure Labs Engineering as the structural engineer, and Aqua Engineering as the civil engineer.
Project features include 82 underground parking spaces, 85 class 1A bicycle parking spaces, eighth floor amenity space, a common residential roof deck, mail/package room, trash room, and ground floor non-residential space.

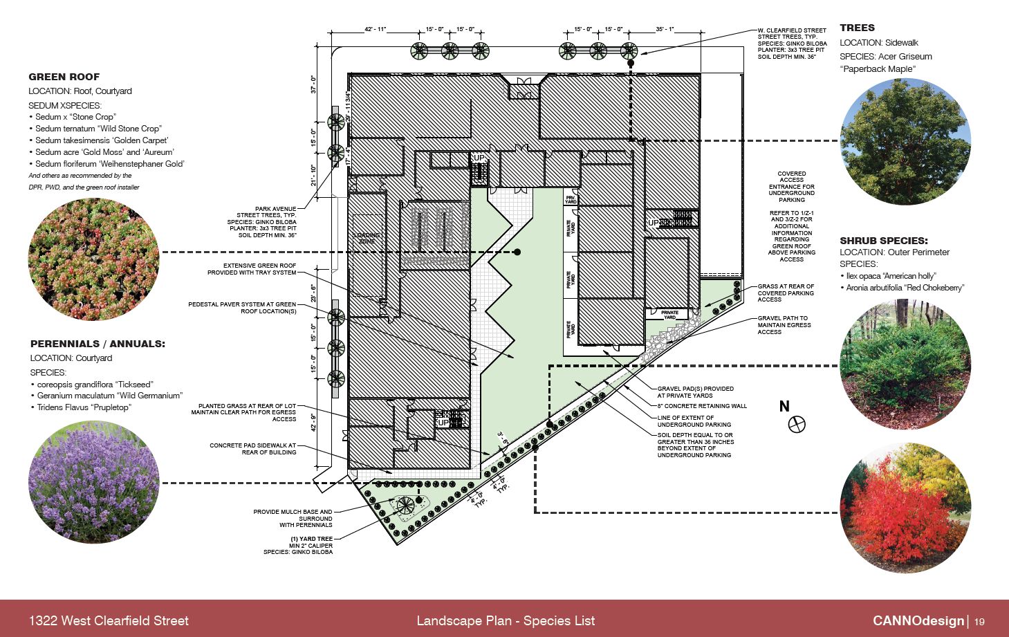
1318 West Clearfield Street. Credit: CANNOdesign via the Civic Design Review by the Philadelphia City Planning Commission and the Department of Planning and Development

1318 West Clearfield Street. Credit: CANNOdesign via the Civic Design Review by the Philadelphia City Planning Commission and the Department of Planning and Development

1318 West Clearfield Street. Credit: CANNOdesign via the Civic Design Review by the Philadelphia City Planning Commission and the Department of Planning and Development

1318 West Clearfield Street. Credit: CANNOdesign via the Civic Design Review by the Philadelphia City Planning Commission and the Department of Planning and Development

1318 West Clearfield Street. Credit: CANNOdesign via the Civic Design Review by the Philadelphia City Planning Commission and the Department of Planning and Development

1318 West Clearfield Street. Credit: CANNOdesign via the Civic Design Review by the Philadelphia City Planning Commission and the Department of Planning and Development

1318 West Clearfield Street. Credit: CANNOdesign via the Civic Design Review by the Philadelphia City Planning Commission and the Department of Planning and Development

1318 West Clearfield Street. Credit: CANNOdesign via the Civic Design Review by the Philadelphia City Planning Commission and the Department of Planning and Development

1318 West Clearfield Street. Credit: CANNOdesign via the Civic Design Review by the Philadelphia City Planning Commission and the Department of Planning and Development

1318 West Clearfield Street. Credit: CANNOdesign via the Civic Design Review by the Philadelphia City Planning Commission and the Department of Planning and Development

1318 West Clearfield Street. Credit: CANNOdesign via the Civic Design Review by the Philadelphia City Planning Commission and the Department of Planning and Development

1318 West Clearfield Street. Credit: CANNOdesign via the Civic Design Review by the Philadelphia City Planning Commission and the Department of Planning and Development

1318 West Clearfield Street. Credit: CANNOdesign via the Civic Design Review by the Philadelphia City Planning Commission and the Department of Planning and Development
Subscribe to YIMBY’s daily e-mail
![]()
Follow YIMBYgram for real-time photo updates
Like YIMBY on Facebook
Follow YIMBY’s Twitter for the latest in YIMBYnews


Be the first to comment on "Residential Development Planned at 1318 West Clearfield Street in Glenwood, North Philadelphia"