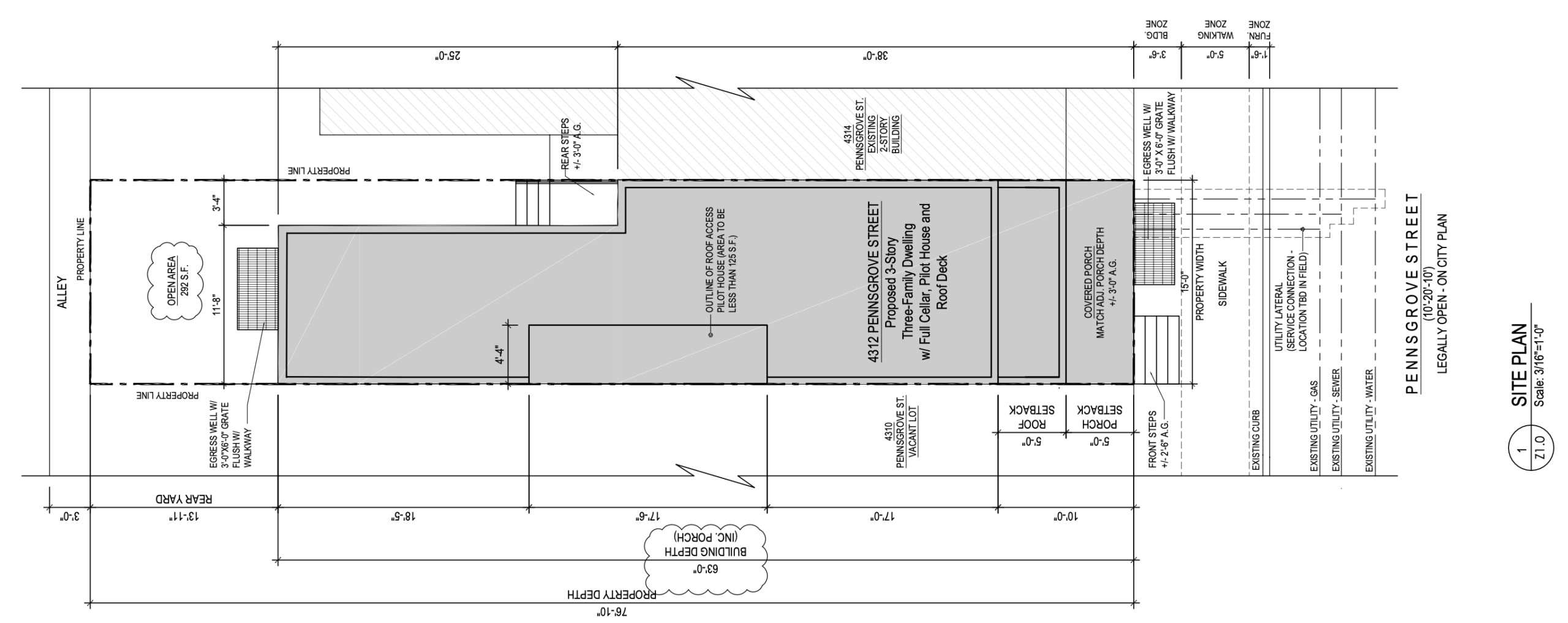
Permits have been issued for the construction of a three-story, three-unit residential building at 4312 Pennsgrove Street in Belmont, West Philadelphia. The property sits mid-block between 43rd and 44th streets in the Mill Creek section, near Pennsgrove Street. Permits list 24/7 Design Group LLC as the architect and Elegance Group LLC as the contractor.
Construction costs are listed at $475,000, which includes $30,000 for excavation. Maestro Home LLC is listed as the owner.

4312 Pennsgrove Street Plan via 24/7 Design Group
Permits call for the construction of an attached structure rising three stories plus a basement. The building will include a roof deck accessed via a pilot house and will be fully sprinklered. The total construction area is 3,215 square feet. The approved occupancy is R-2 Residential (three dwelling units).
A zoning permit was issued in February 2023 and amended later that year, allowing the new attached structure under the RM-1 Residential Multi-Family district. The site measures roughly 15 feet wide by 76 feet deep, with a lot area of 1,153 square feet. Plans show 292 square feet (nearly 25 percent) of open area, 17 feet of rear yard depth, and a maximum building height of 33-and-a-half feet, remaining below the district’s 38-foot limit.
Drawings show a narrow infill structure built to align with neighboring rowhouses, featuring a covered front porch matching adjacent depths and rear steps leading to a small yard. The pilot house will stay under 125 square feet, providing access to the roof deck atop the third floor. Published cross section view confirms 10-foot-high floor levels, a 3-foot-6-inch parapet, and a 9-foot-tall pilot house above the main roof.
The design conforms to the established residential pattern of the block, replacing a vacant lot. The new construction will help restore the street wall continuity along Pennsgrove Street while adding modern, code-compliant housing in West Philadelphia.
Subscribe to YIMBY’s daily e-mail
![]()
Follow YIMBYgram for real-time photo updates
Like YIMBY on Facebook
Follow YIMBY’s Twitter for the latest in YIMBYnews


Certainly better than recently completed 909 Belmont Ave. around the corner. There, instead of a matching front porch, there’s a concrete pad used as storage for trash cans.