Permits have been issued for the construction of a four-unit multi-family building at 4234 Otter Street in Belmont, West Philadelphia. The development will rise near a block between Brown Street and Reno Street and will span 4,321 square feet. TSF Investment LLC is listed as the property owner, the 24 Seven Design Group as the architect, and Merit Properties LLC as the contractor.
The total construction cost is estimated at $400,000, which includes $385,000 for general construction and $15,000 for excavation.

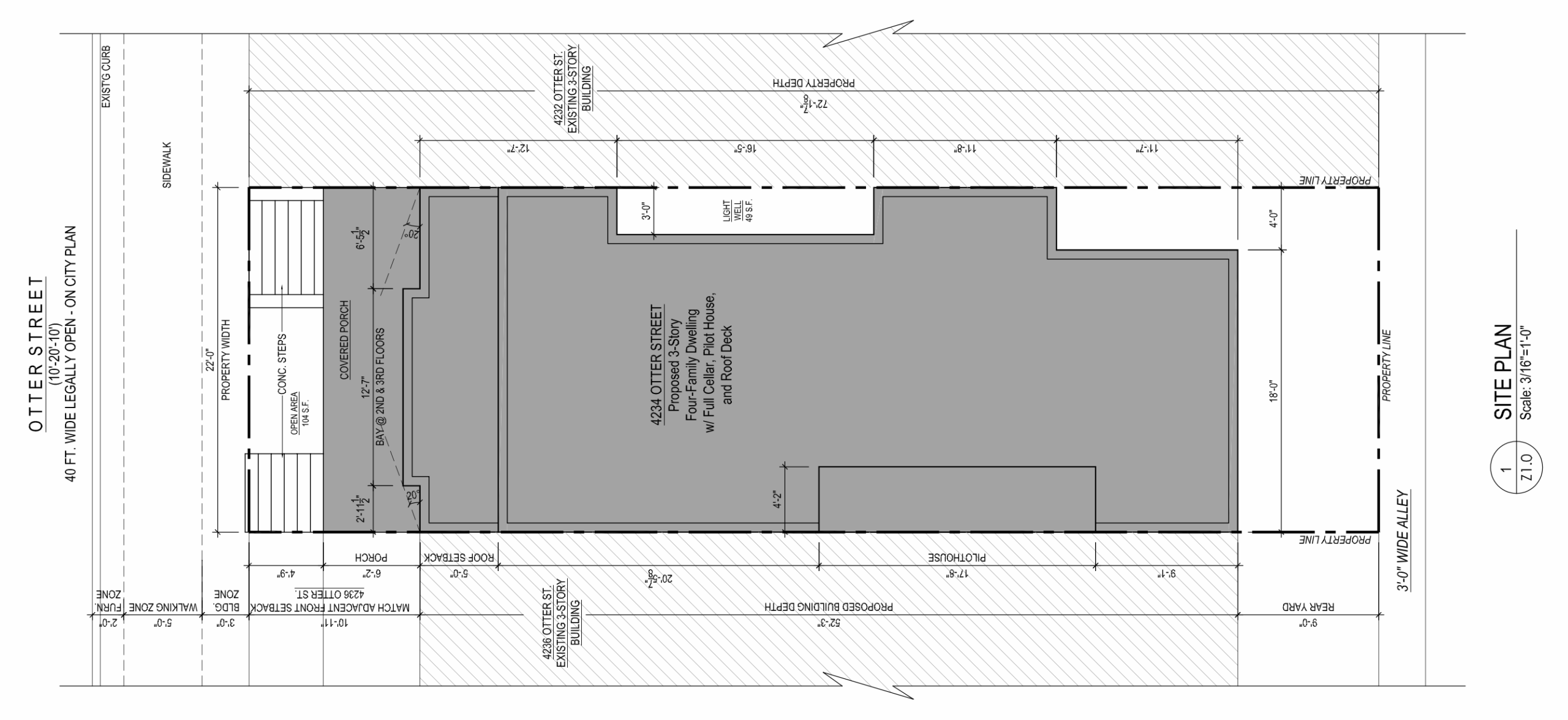
4234 Otter Street Plan via 24/7 Design Group
The development calls for the construction of an attached three-story structure with a basement, a private roof deck, and a pilot house, classified under Group R-2 occupancy. Construction will utilize Type V-B combustible framing and will be fully sprinklered under NFPA 13 standards.
The property is zoned RM-1 (Residential Multi-Family) and allows the construction of an attached residential structure. The lot measures 22 feet wide and 72 feet deep, totaling approximately 1,587 square feet. The design meets the maximum 75 percent lot coverage requirement with 1,189 square feet of occupied building area, leaving a nine-foot rear yard that complies with open-space provisions. The structure will rise 34 feet to the main roof and approximately 43 feet to the top of the pilot house, remaining below the 38-foot district height limit when accounting for the roof access allowance.
Architectural drawings depict a three-story contemporary row-house-style building with a brick-clad façade, projecting bays on the upper floors, and a recessed covered entry porch at street level. The layout includes a full cellar, a roof deck accessed by a pilot house, and light wells to provide natural illumination to the basement level.
The site, currently a vacant lot, sits mid-block on a narrow residential street lined with traditional rowhouses. Upon completion, the building at 4234 Otter Street will contribute four new residential units to West Philadelphia’s growing housing stock, supporting ongoing efforts to redevelop underused parcels with modern, code-compliant infill construction.
Subscribe to YIMBY’s daily e-mail
![]()
Follow YIMBYgram for real-time photo updates
Like YIMBY on Facebook
Follow YIMBY’s Twitter for the latest in YIMBYnews






Hopefully, the 104 square foot front “open area” will be beautifully landscaped (including a rose bush and a hydrangea) similar to 4232 Otter St. and not cemented over like 4236 Otter St.
I am wishing with you!