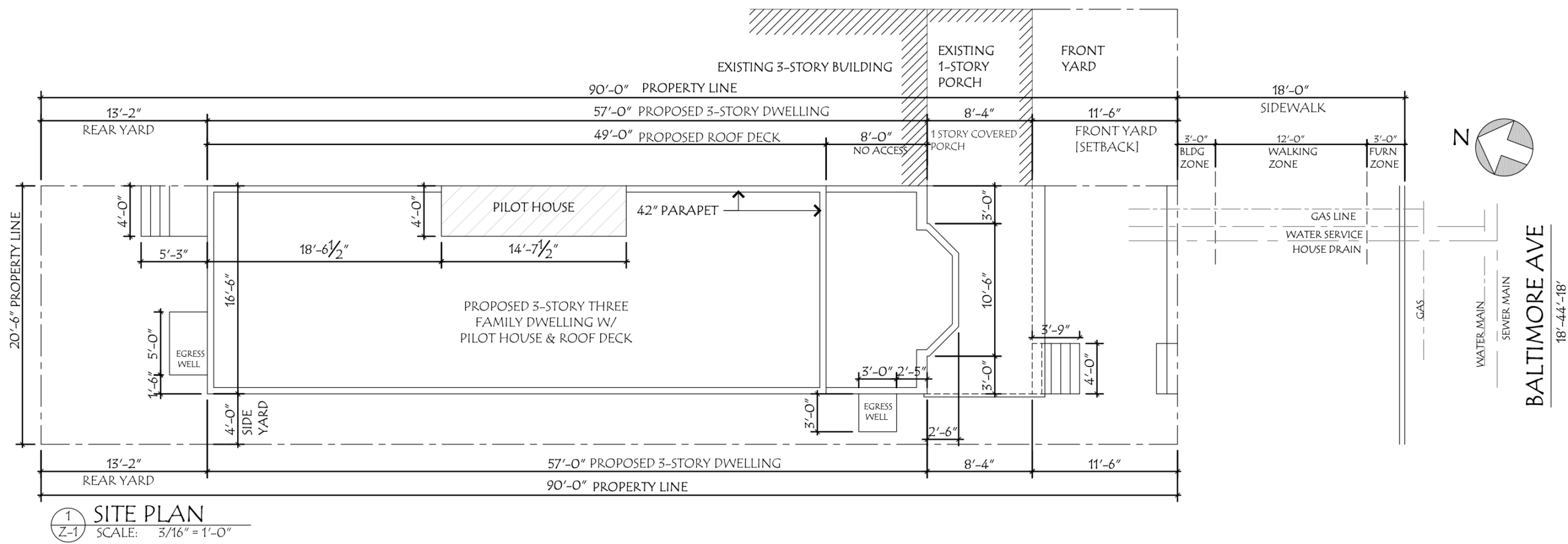
Permits have been issued for the construction of a three-story, three-unit residential building at 5111 Baltimore Avenue in Cedar Park, West Philadelphia. The project site sits on the north side of Baltimore Avenue, between 51st Street and 52nd Street, in a row of mixed residential and commercial properties. The development will span 3,628 square feet and will feature a basement. Design work was prepared by Scale Design Group, while SK Capital Investments LLC is the contractor.
Construction costs are listed at $408,000, including $401,000 in general construction and $7,000 in excavation work. 4934 Locust Street LLC is listed as the owner.

5111 Baltimore Avenue Site Plan via Scale Design Group
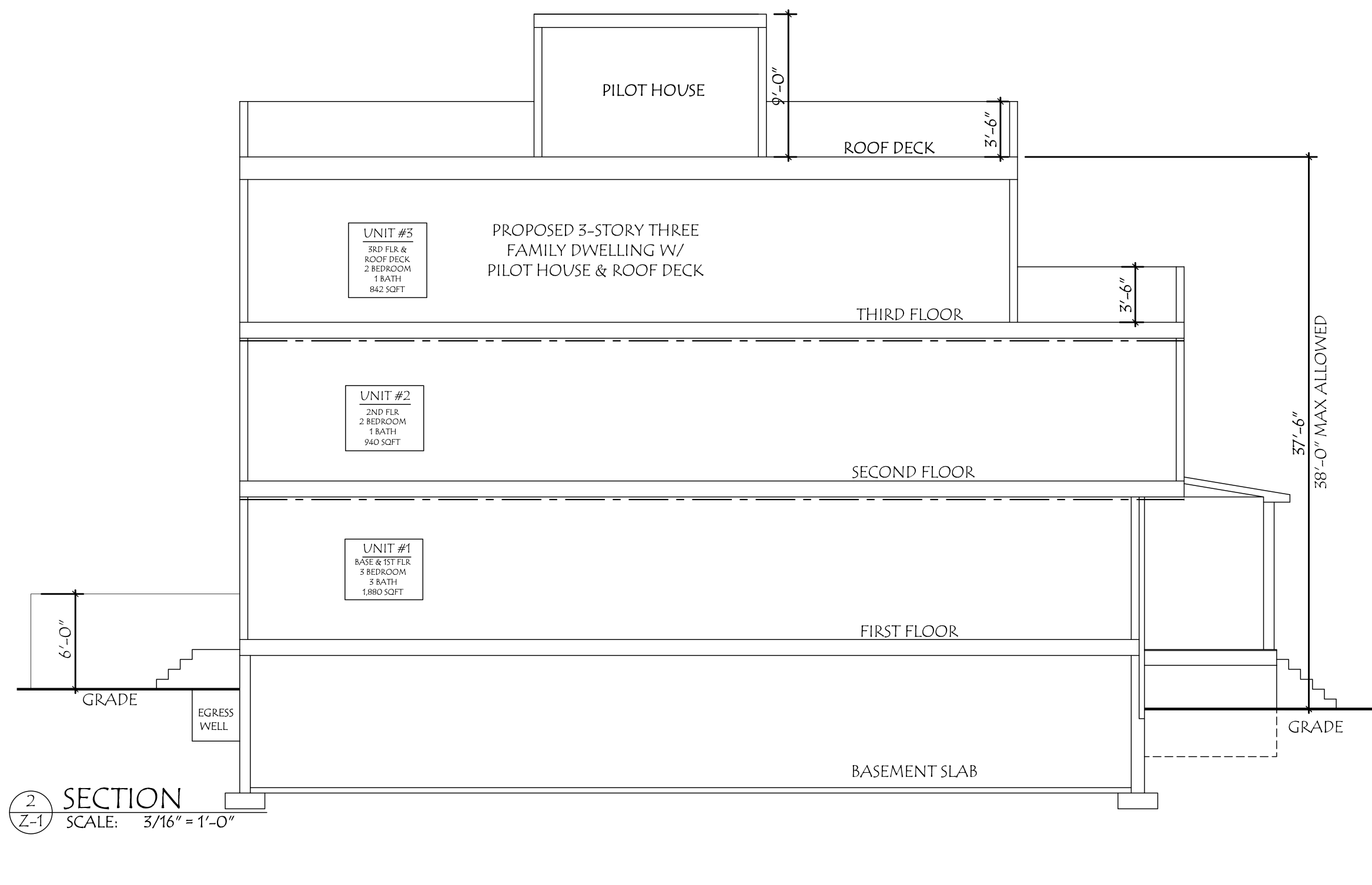
The building will feature Type V-A wood-frame construction. The property is zoned RSA-3 (Single-Family Attached Dwelling), with variances granted for conversion to R-2 use to accommodate three units. The 1,845-square-foot lot measures 20-and-a-half feet wide and 90 feet deep, providing a 13-foot rear yard and 11-and-a-half-foot front setback.
The building will rise 37-and-a-half feet high, just below the 38-foot maximum permitted height. Architectural plans depict a three-story structure with a basement, roof deck, and pilot house set back from the parapet. The building will contain three units, including a bi-level unit with five bedrooms and three baths across the basement and first floor, and two two-bedroom, one-bath units above.

5111 Baltimore Avenue Section via Scale Design Group
The façade combines a masonry brick base with horizontal siding above, topped by a setback third story. The property lies along the Baltimore Avenue corridor, an active mixed-use stretch that continues to attract small-scale infill development. The project will contribute three new homes to the Cedar Park neighborhood while maintaining scale consistent with nearby rowhouses.
Subscribe to YIMBY’s daily e-mail
![]()
Follow YIMBYgram for real-time photo updates
Like YIMBY on Facebook
Follow YIMBY’s Twitter for the latest in YIMBYnews






This is one of several recently constructed apartment buildings along this section of Baltimore Ave. Check out the two colorful “flower” murals at 5050 Baltimore Ave.