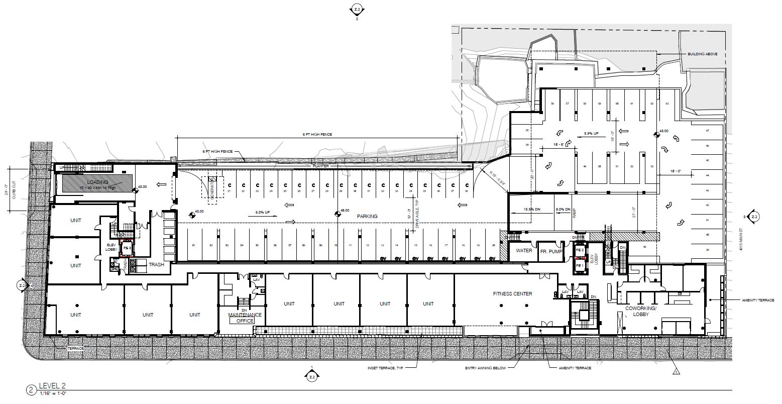
Philly YIMBY recently shared plans revealed in a submission to the Philadelphia City Planning Commission’s Civic Design Review committee reveals details for a seven-story, 163-unit residential development planned at 4045-61 Main Street in in Manayunk, Northwest Philadelphia. The project, which features Urban Conversions as the owner and CBP Architects as the designer, will span 239,938 square feet and will overlook the Schuylkill River. A total of 162 parking spaces will be provided. Today we look at the floor plans for the proposed structure.

4045-61 Main Street. Credit: CBP Architects via the Civic Design Review by the Philadelphia City Planning Commission and the Department of Planning and Development

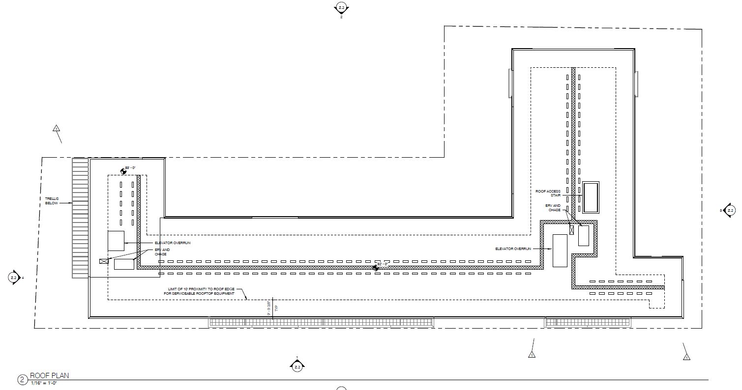
4045-61 Main Street. Credit: CBP Architects via the Civic Design Review by the Philadelphia City Planning Commission and the Department of Planning and Development

4045-61 Main Street. Credit: CBP Architects via the Civic Design Review by the Philadelphia City Planning Commission and the Department of Planning and Development

4045-61 Main Street. Credit: CBP Architects via the Civic Design Review by the Philadelphia City Planning Commission and the Department of Planning and Development

4045-61 Main Street. Credit: CBP Architects via the Civic Design Review by the Philadelphia City Planning Commission and the Department of Planning and Development

4045-61 Main Street. Credit: CBP Architects via the Civic Design Review by the Philadelphia City Planning Commission and the Department of Planning and Development

4045-61 Main Street. Credit: CBP Architects via the Civic Design Review by the Philadelphia City Planning Commission and the Department of Planning and Development

4045-61 Main Street. Credit: CBP Architects via the Civic Design Review by the Philadelphia City Planning Commission and the Department of Planning and Development

4045-61 Main Street. Credit: CBP Architects via the Civic Design Review by the Philadelphia City Planning Commission and the Department of Planning and Development

4045-61 Main Street. Credit: CBP Architects via the Civic Design Review by the Philadelphia City Planning Commission and the Department of Planning and Development

4045-61 Main Street. Credit: CBP Architects via the Civic Design Review by the Philadelphia City Planning Commission and the Department of Planning and Development

4045-61 Main Street. Credit: CBP Architects via the Civic Design Review by the Philadelphia City Planning Commission and the Department of Planning and Development

4045-61 Main Street. Credit: CBP Architects via the Civic Design Review by the Philadelphia City Planning Commission and the Department of Planning and Development

4045-61 Main Street. Credit: CBP Architects via the Civic Design Review by the Philadelphia City Planning Commission and the Department of Planning and Development

4045-61 Main Street. Credit: CBP Architects via the Civic Design Review by the Philadelphia City Planning Commission and the Department of Planning and Development
Subscribe to YIMBY’s daily e-mail
![]()
Follow YIMBYgram for real-time photo updates
Like YIMBY on Facebook
Follow YIMBY’s Twitter for the latest in YIMBYnews


Be the first to comment on "YIMBY Shares Floor Plans for 163-Unit Building Proposed at 4045-61 Main Street in Manayunk, Northwest Philadelphia"