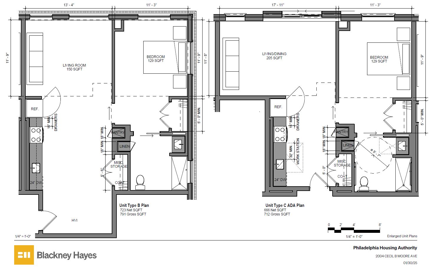
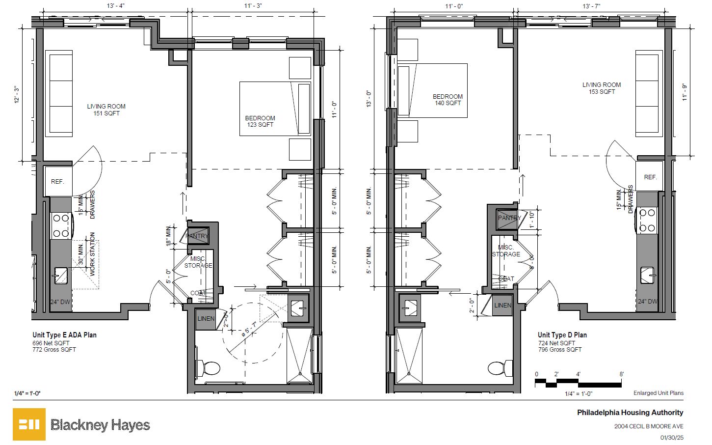
A recent submission to the Philadelphia City Planning Commission’s Civic Design Review committee reveals details for a three-story residential development planned at 2006 Cecil B Moore Avenue in Cecil B. Moore, North Philadelphia. The complex is being developed by the Philadelphia Housing Authority. Today we share a detailed compendium of floor plans, building sections, and layouts for individual units. Blackney Hayes is the project designer.

2006 Cecil B Moore Avenue. Credit: Blackney Hayes via the Civic Design Review by the Philadelphia City Planning Commission and the Department of Planning and Development

2006 Cecil B Moore Avenue. Credit: Blackney Hayes via the Civic Design Review by the Philadelphia City Planning Commission and the Department of Planning and Development

2006 Cecil B Moore Avenue. Credit: Blackney Hayes via the Civic Design Review by the Philadelphia City Planning Commission and the Department of Planning and Development

2006 Cecil B Moore Avenue. Credit: Blackney Hayes via the Civic Design Review by the Philadelphia City Planning Commission and the Department of Planning and Development

2006 Cecil B Moore Avenue. Credit: Blackney Hayes via the Civic Design Review by the Philadelphia City Planning Commission and the Department of Planning and Development

2006 Cecil B Moore Avenue. Credit: Blackney Hayes via the Civic Design Review by the Philadelphia City Planning Commission and the Department of Planning and Development

2006 Cecil B Moore Avenue. Credit: Blackney Hayes via the Civic Design Review by the Philadelphia City Planning Commission and the Department of Planning and Development

2006 Cecil B Moore Avenue. Credit: Blackney Hayes via the Civic Design Review by the Philadelphia City Planning Commission and the Department of Planning and Development

2006 Cecil B Moore Avenue. Credit: Blackney Hayes via the Civic Design Review by the Philadelphia City Planning Commission and the Department of Planning and Development

2006 Cecil B Moore Avenue. Credit: Blackney Hayes via the Civic Design Review by the Philadelphia City Planning Commission and the Department of Planning and Development

2006 Cecil B Moore Avenue. Credit: Blackney Hayes via the Civic Design Review by the Philadelphia City Planning Commission and the Department of Planning and Development

2006 Cecil B Moore Avenue. Credit: Blackney Hayes via the Civic Design Review by the Philadelphia City Planning Commission and the Department of Planning and Development
Subscribe to YIMBY’s daily e-mail
![]()
Follow YIMBYgram for real-time photo updates
Like YIMBY on Facebook
Follow YIMBY’s Twitter for the latest in YIMBYnews


Be the first to comment on "Floor and Unit Plans Revealed for Residential Complex Planned at 2006 Cecil B Moore Avenue in Cecil B Moore, North Philadelphia"