Recently issued zoning permits document plans for a proposed five-story, nine-unit mixed-use building with ground-floor commercial space at 1630-32 Ridge Avenue in the Francisville neighborhood of North Philadelphia. The proposal calls for an attached five-story structure with a cellar, combining residential and commercial uses along Ridge Avenue. The project is being developed by Francisville Neighborhood Development Corp, with design work prepared by T + Associates Architects. Take Up Space Construction is the contractor.
Permit records list a total construction cost of $1,120,500.

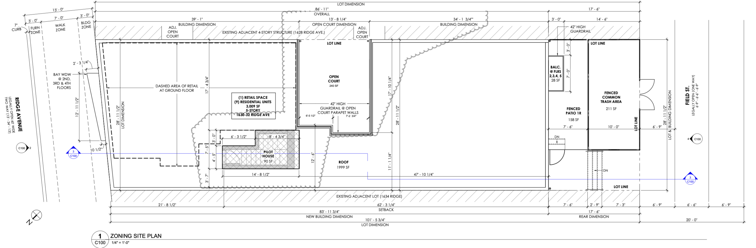
1630-32 Ridge Avenue Plan via T+ Associates Architects
Zoning documentation places the property within the CMX-2.5 district. The parcel measures approximately 3,009.5 square feet. The approved scope authorizes the construction of a five-story building containing nine dwelling units and one ground-floor commercial space. Residential space is classified as R-2 occupancy. Plans show a maximum building height of approximately 52 feet 6 inches, which remains below the 55-foot height limit. The project includes an open court and complies with lot coverage requirements.

1630-32 Ridge Avenue Section via T+ Associates Architects
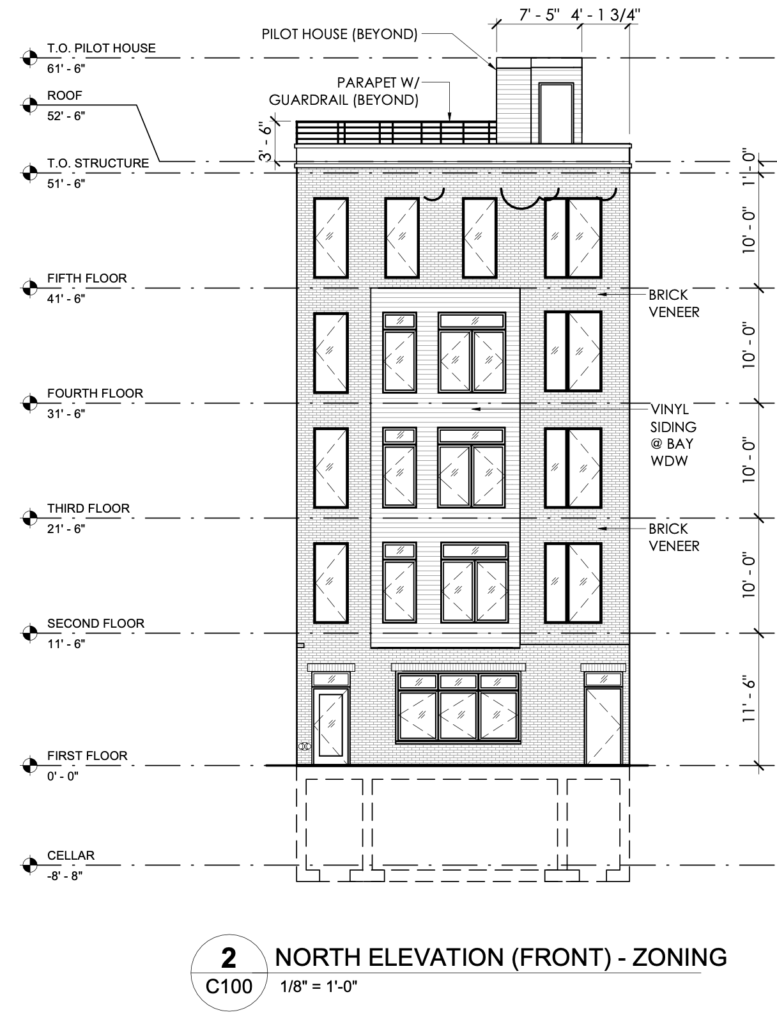
Drawings depict a vertically stacked building mass with a cellar level and five stories above, topped by a roof deck intended for residential use and accessed by three individual roof deck access structures. Exterior materials shown on the elevations include brick veneer and vinyl siding, with balconies provided on upper floors.

1630-32 Ridge Avenue South Elevation via T+ Associates Architects
Zoning Permit Amendment No. 2, approved in late September 2025, reflects dimensional adjustments to the open court and roof deck access structures without changing the approved unit count or overall building area.
A construction timeline has not yet been announced.
Subscribe to YIMBY’s daily e-mail
![]()
Follow YIMBYgram for real-time photo updates
Like YIMBY on Facebook
Follow YIMBY’s Twitter for the latest in YIMBYnews






Great infill.
Despite more than a dozen recently completed developments on this half-mile stretch of Ridge Avenue from Broad Street to Girard Avenue, there are only two street trees. Which is great for sun tanning but not so much for keeping cool. With large amounts of concrete, asphalt, and brick absorbing daytime summer heat and releasing it at night, everyone can “sauna” together.
Elevator?
Jim: A shaft for an elevator with five stops is shown on the building section.
The text of the article is misleading, as it describes proposed building features depicted on zoning permit drawings from February 2025. Since then, the proposed building design has been changed significantly.
Cutting it down from 11 units to 9 helps some, but it still feels like a lot for that stretch of Ridge. These look like the updated plans.