Recently issued permits outline plans for new residential construction at 873–75 North Preston Street in Belmont, West Philadelphia. The project proposes an attached three-story multi-family residential building with an occupiable roof deck on a parcel located along North Preston Street. The property is owned by 873 Preston Street LLC, with architectural plans prepared by Plato Studio. Yona Construction LLC is the contractor.
Permit documentation lists a total construction cost of $550,000, including $450,000 for general construction and $100,000 for excavation work.

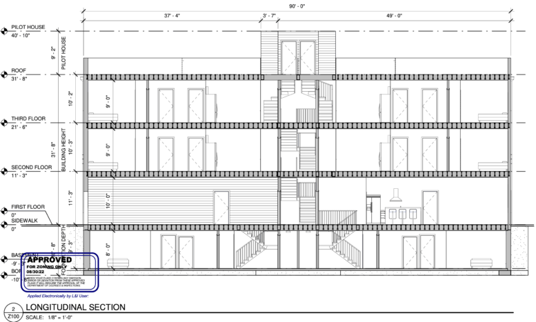
873 North Preston Street Plan via Plato Studio
The development will contain six dwelling units classified as R-2 residential occupancy. The structure will rise three stories above grade with a basement level. The approved scope also includes a roof access structure serving an occupiable roof deck.
Zoning records show that the property is located within the RM-1 residential zoning district. The parcel measures approximately 4,800 square feet, exceeding minimum lot area requirements. Plans indicate that the building will reach a maximum height of approximately 37 feet 7 inches, remaining below the 38-foot height limit permitted in the district. A rear yard depth of 15 feet is provided, exceeding the minimum nine-foot requirement. Open area totals approximately 1,200 square feet, meeting the minimum requirement, with 600 square feet provided as rear open area and additional open space located at the front of the lot.
Section drawing shows a rectilinear structure with vertically stacked units organized around a central stair core. The roof deck is accessed by a pilot house structure, with stair-only vertical circulation shown throughout the building.
A construction timeline has not yet been announced.
Subscribe to YIMBY’s daily e-mail
![]()
Follow YIMBYgram for real-time photo updates
Like YIMBY on Facebook
Follow YIMBY’s Twitter for the latest in YIMBYnews






Sometime between November 2020 and July 2024, Pennsylvania Horticultural Society (PHS) “cleaned and greened” five vacant lots, 869-877 N. Preston St., including the site of the current project.
Prior to the clean-up, the parcel held trash, overgrown foliage, a rusted metal chainlink fence, an abandoned mattress, and chunks of concrete, among other goodies. After PHS’ intervention, there was some lawn, five young trees, and an open wooden fence, perfect for tossing a frisbee or playing “catch”.
Development of 873-75 N. Preston may be a direct result of PHS’s success, as the lots’ potential became evident.
The overall development looks like two six-unit apartment buildings on two adjacent 20-foot wide lots, with the 873 North Preston building design mirrored for 875 North Preston.