A recently issued permit shows plans for the construction of a three-story, two-unit residential building at 3974 Reno Street in Mantua, West Philadelphia. Permits call for the erection of an attached structure with a full cellar, roof deck, and pilot house. The project will replace a vacant lot near North 40th Street. Permits list 24/Seven Design Group LLC as the architect, Elegance Group LLC as the contractor, and Bluestone Real Estate LLC is listed as the owner.
The project carries a stated total construction cost of $300,000, including $250,000 for general construction and $50,000 combined for mechanical, electrical, plumbing, and excavation work.

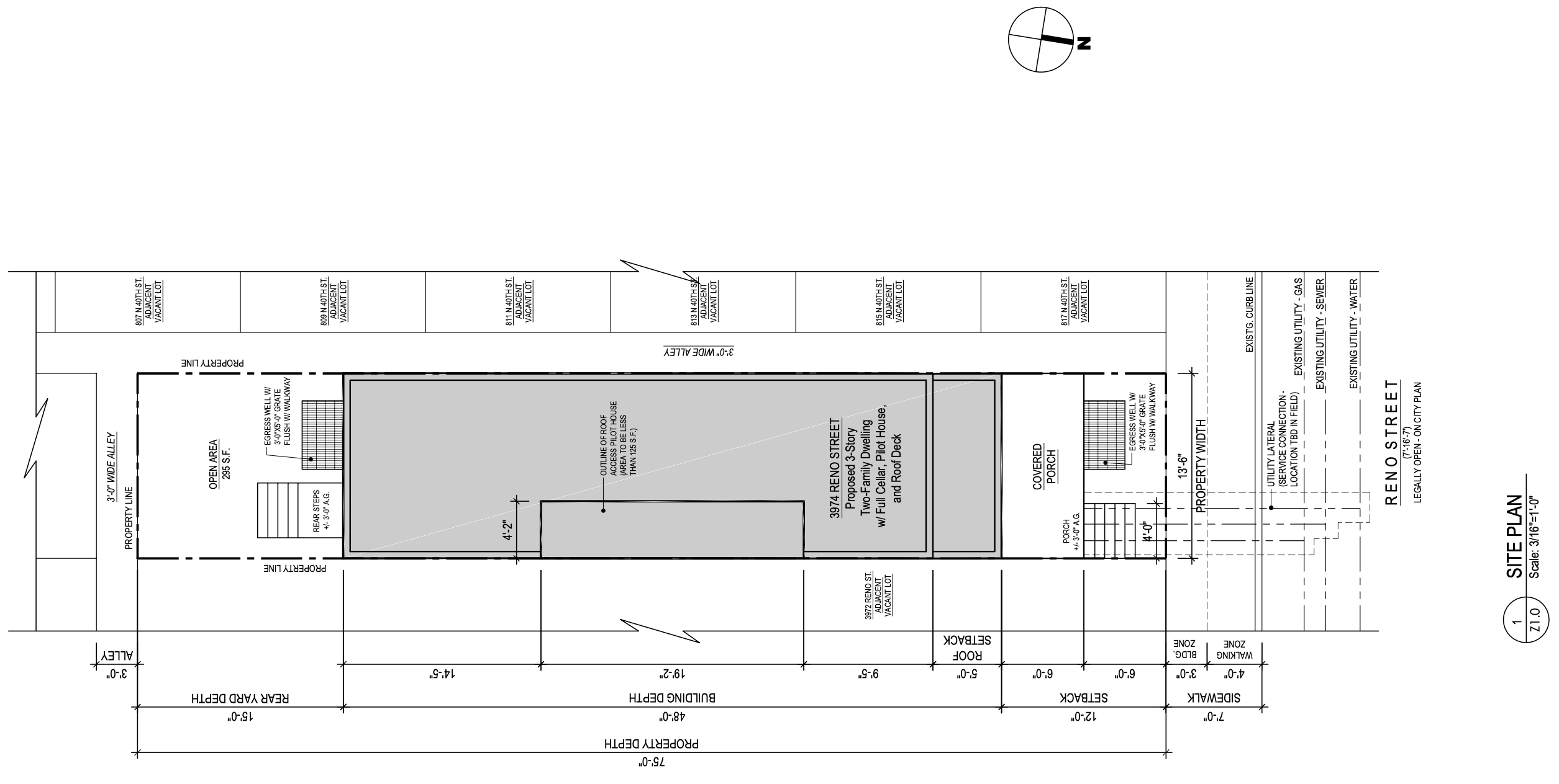
3974 Reno Street Plan via 24/7 Design Group
The development will rise on a narrow vacant lot situated between a rowhouse and a string of empty parcels. The new building will span 2,673 square feet. Zoning documents describe the site as a 13-foot-6-inch-wide, 75-foot-deep parcel with a lot area of 1,012 square feet in the RSA-5 zoning district, within the Mixed Income Neighborhoods Overlay. The existing lot is smaller and narrower than standard RSA-5 requirements, but these conditions remain unchanged.
Plans provide 286 square feet of open space and a 15-foot-deep rear yard where nine feet is required. The proposed building height of 36 feet fits under the 38-foot district limit. The site plan shows a 48-foot-deep main building volume set back from the Reno Street property line, with a small front porch and steps, and a rear open yard served by exterior stairs from the basement and first floor.
The zoning section drawing indicates ten foot floor-to-floor heights and a roof deck set behind a parapet, accessed by a compact pilot house that remains under the 125 square foot limit for rooftop access structures. Excavation will disturb approximately 750 square feet of ground for the cellar.
The project site is located within a short distance from the Philadelphia Zoo. No construction timeline has yet been announced.
Subscribe to YIMBY’s daily e-mail
![]()
Follow YIMBYgram for real-time photo updates
Like YIMBY on Facebook
Follow YIMBY’s Twitter for the latest in YIMBYnews






Although the site plan indicates that the six parcels 807 through 817 N. 40th St. are all vacant, Google Maps October 2021 shows 807, 811, and 813 three story residences being built and nearly finished. In addition, there was also construction at 801 and 803 N. 40th St. Undoubtedly, these five homes are completed now. 801 is especially gorgeous but the others are handsome as well. There’s even a row of street trees.
In July 2024, there was construction fencing around 815 and 817 N. 40th with two porta potty’s on site, a tell tale sign of imminent construction. The fence appears to surround both 3972 and 3974 Reno St. too.