Permits have been issued for the construction of a new residential structure at 1700 South Ringgold Street in South Philadelphia. The project calls for the erection of an attached two-story building with a basement, to be used as a single-family dwelling. The development is owned by the Philadelphia Land Bank, with RSG Management, LLC listed as the contractor. Designs are attributed to A2 Design Group.
Construction costs are listed at $195,000. This total includes $150,000 in general construction, $10,000 for excavation, $10,000 for electrical work, $10,000 for mechanical systems, and $15,000 for plumbing.

1700 South Ringgold Street Plan via A2 Design Group
Permit filings classify the building under R-3 occupancy for single-family residential use. The structure will contain two stories above a basement and span a total construction area of 1,407 square feet. Construction is specified as Type V-B combustible unprotected. Zoning documents place the site within an RSA-5 residential district. Plans indicate a lot area of 768 square feet, with a proposed building footprint of 568 square feet. Open space is calculated at 200 square feet, representing approximately 26 percent of the lot. The proposed rear yard depth is listed at 12 feet 6 inches. The building height is shown at 27 feet 6 inches, remaining below the 38-foot maximum permitted under zoning regulations.

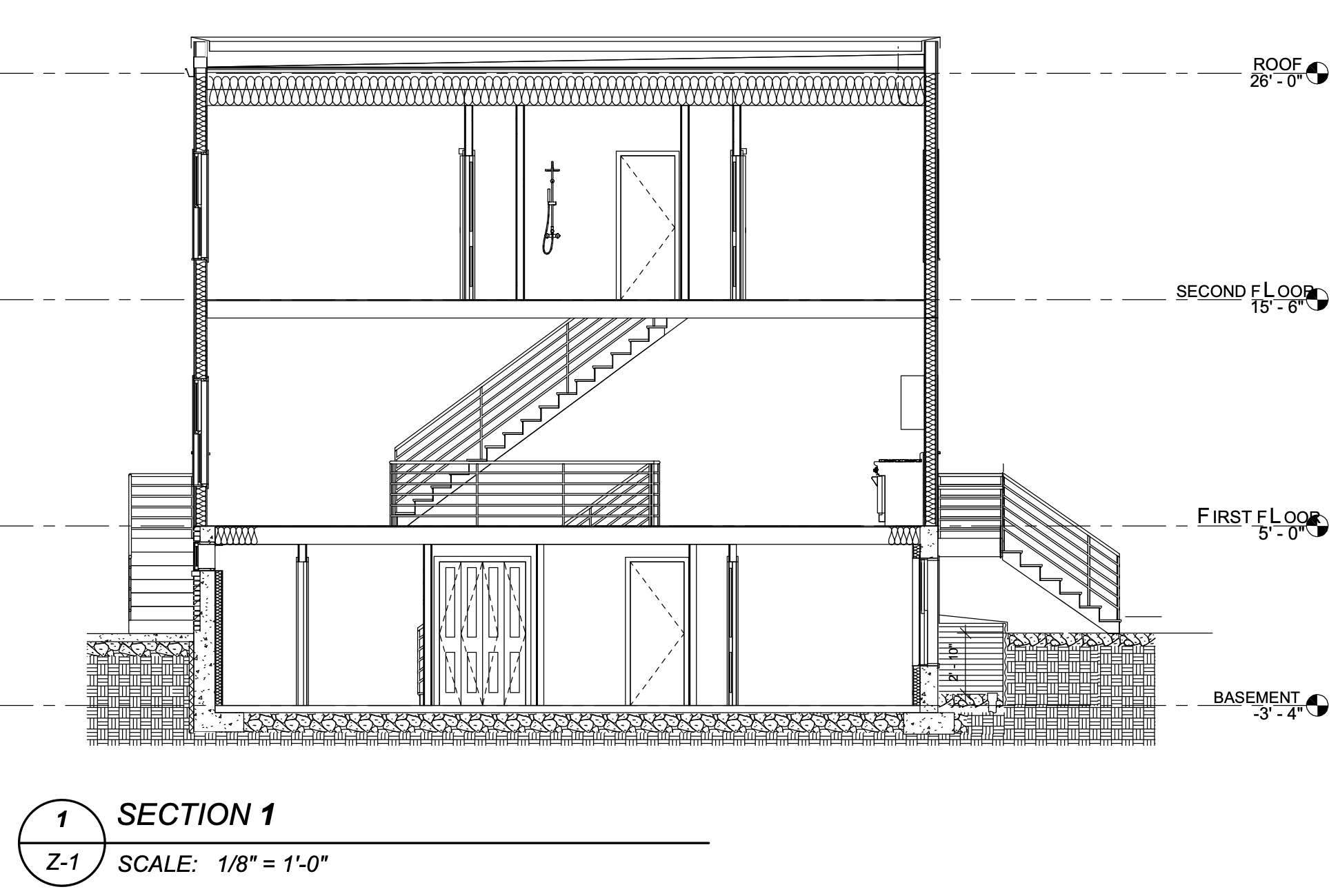
1700 South Ringgold Street Section via A2 Design Group

1700 South Ringgold Street Rear Facade via A2 Design Group
Architectural drawings depict a two-story attached structure with a basement level and front stair access from the sidewalk. The front elevation shows a raised entry with a landing and railing, while window openings are arranged symmetrically across both floors. Section drawings indicate interior stair circulation connecting the basement, first, and second levels, along with a flat roof profile.

1700 South Ringgold Street Location via A2 Design Group
The project involves approximately 672 square feet of earth disturbance and notes impacts on adjacent properties during construction. Site plans identify the parcel as a corner lot at the intersection of South Ringgold Street and Morris Street, with surrounding properties consisting of attached residential structures and vacant lots.
Subscribe to YIMBY’s daily e-mail
Follow YIMBYgram for real-time photo updates
Like YIMBY on Facebook
Follow YIMBY’s Twitter for the latest in YIMBYnews






Be the first to comment on "Permits Issued for Residence at 1700 South Ringgold Street in South Philadelphia"