A new residential development is planned at 1515 North 27th Street in North Philadelphia. Permits indicate the construction of a three-story attached structure with a basement. The project is being developed by LAF PROJECT DOS LLC, with D and V Contractors Inc listed as the contractor. MC Architectural LLC is responsible for the designs.
Construction costs are listed at approximately $260,000, including $215,000 in general construction, $15,000 in excavation, and $10,000 each for electrical, mechanical, and plumbing work.

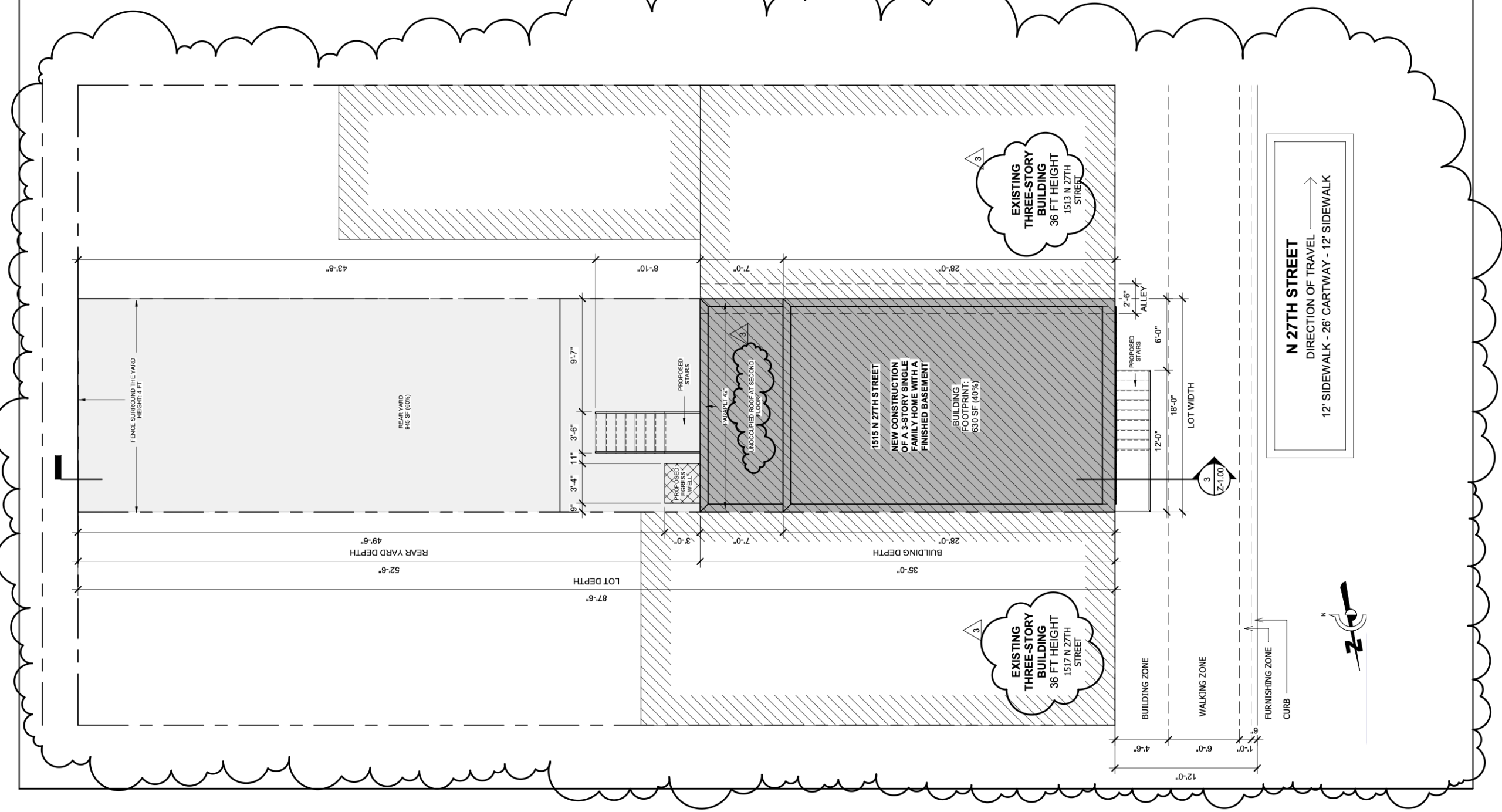
1515 North 27th Street Plan via MC architectural LLC
Permit filings describe the project as a single-family dwelling classified under R-3 occupancy. The structure will rise three stories above a basement and span a total construction area of 2,370 square feet. Construction is Type V-A combustible protected. Zoning documents place the property within an RSA-5 residential district, permitting single-family household living. The lot measures approximately 1,575 square feet, with a proposed building footprint of 630 square feet, equating to 40 percent lot coverage. Open space accounts for roughly 60 percent of the lot. The plans indicate a rear yard depth of approximately 52 feet 6 inches, exceeding the minimum requirement. The structure is proposed to reach a height of approximately 36 feet, remaining within the 38-foot maximum permitted by zoning.

1515 North 27th Street Site via MC Architectural LLC
Earth disturbance is estimated at 480 square feet. The project also notes impacts on adjacent properties during construction.
Architectural drawings depict a narrow attached rowhouse with a building width of approximately 18 feet and a depth of about 35 feet. The design includes a basement level, interior stair circulation connecting all floors, and a second-floor setback visible in section drawings. The proposed height matches adjacent buildings shown at approximately 36 feet in the drawings.
The estimated construction timeline has not been revealed yet.
Subscribe to YIMBY’s daily e-mail
![]()
Follow YIMBYgram for real-time photo updates
Like YIMBY on Facebook
Follow YIMBY’s Twitter for the latest in YIMBYnews






Be the first to comment on "Single-Family Rowhouse Planned at 1515 North 27th Street in North Philadelphia"