Permits Issued for Six-Unit Residential Building at 1615 West Tioga Street in Nicetown-Tioga, Philadelphia
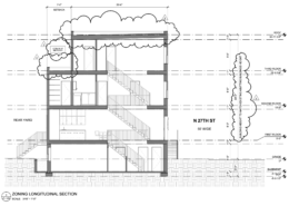
Permits have been issued for the construction of a new residential building at 1615 West Tioga Street in the Nicetown-Tioga neighborhood of North Philadelphia. The project calls for the development of a three-story attached structure containing six dwelling units. The property is owned by W Tioga Holdings LLC, with D and V Contractors Inc listed as the contractor. MASS Architecture Studio is the architect.



