A construction permit has been issued for the development of a three-story residential building at 4167 Mantua Avenue in Belmont, West Philadelphia. The project site is a vacant lot situated along Mantua Avenue. The property is owned by the Philadelphia Housing Authority, with 24/7 Design Group as the architect and construction to be carried out by Lapstone LLC.
The total construction cost is listed at $495,000, including $465,000 allocated to general construction and $30,000 for excavation work.
Permit documentation specifies the erection of an attached structure with a basement, roof deck, and roof deck access structure. The building will contain four residential units and will be fully sprinklered in accordance with NFPA 13 standards. The structure is classified as Group R-2 occupancy and will be constructed using Type V-A construction methods.

4167 Mantua Avenue Section via 24/7 Design Group
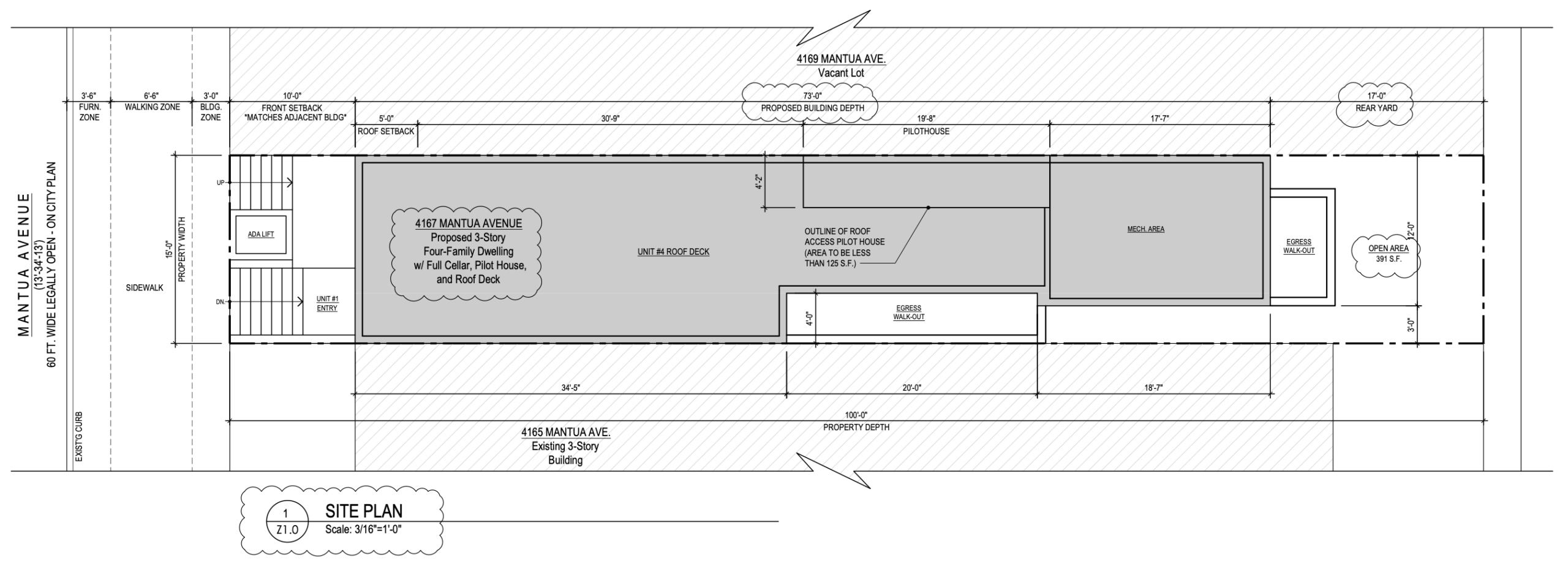
Zoning records show that the site falls within an RSA-5 residential district. A zoning permit was issued in July 2025, following prior refusal due to the proposed multi-family use, which is not permitted by right in this zoning classification. The approved permit authorizes multi-family household living with four units after zoning relief was granted. The lot measures approximately 1,500 square feet, with a proposed building footprint of 959 square feet, representing about 63.93 percent lot coverage.

4167 Mantua Avenue Site Plan via 24/7 Design Group
Plans depict a building rising three stories above a basement level, reaching a height of 34 feet to the top of the structure. The plans show four dwelling units distributed across the basement and three above-grade floors, with additional space allocated for a pilot house and mechanical area at the roof level. A roof deck is positioned above the uppermost unit, with access provided by the pilot house structure.
Architectural drawings depict a rectangular building mass extending deep into the lot, with a rear yard depth of approximately 17 feet. The front setback aligns with adjacent structures, as indicated in zoning plans. The façade composition features vertically proportioned window openings and a projecting bay element, while the base level is differentiated from upper floors through a change in material treatment. Entry access is provided from the sidewalk along Mantua Avenue, with circulation elements including an interior stair and an ADA lift indicated in the plans.

4167 Mantua Avenue via 24/7 Design Group
The site is located along Mantua Avenue within a residential corridor characterized by attached rowhouse development.
Subscribe to YIMBY’s daily e-mail
Follow YIMBYgram for real-time photo updates
Like YIMBY on Facebook
Follow YIMBY’s Twitter for the latest in YIMBYnews






Be the first to comment on "Construction Permit Issued for 4167 Mantua Avenue in Belmont, West Philadelphia"