Permits have been issued for the construction of a new residential building at 1239 South 24th Street in the Point Breeze, South Philadelphia. The project calls for the development of a three-story attached structure to be used as a single-family dwelling. The property is owned by 1239 S 24 St LLC, with Platinum Construction and Development listed as the contractor. Philly Plans is responsible for the designs.
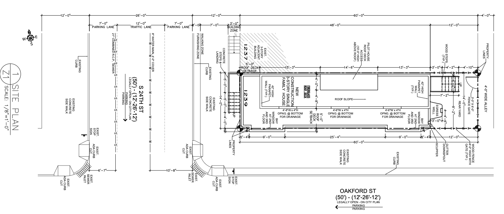
Permit documentation specifies that the structure will be classified under R-3 occupancy for single-family residential use and constructed using Type V-A combustible protected construction. The project will yield a total construction area of 2,282 square feet. The scope of work includes the erection of an attached structure with a roof deck and a roof deck access structure, as indicated in the approved zoning permit . The project also includes approximately 672 square feet of earth disturbance and notes impacts on adjacent properties during construction.

1239 South 24th Street Plan via Philly Plans
Zoning materials identify the site within a CMX-1 district. Plans indicate a lot width of 14 feet and a lot area of 840 square feet. The proposed building footprint is listed at 672 square feet, representing 80 percent lot coverage, while open space is provided at 168 square feet, or 20 percent of the lot. The rear yard depth is shown at 12 feet, exceeding the 9-foot minimum requirement, and the building height is listed at 35 feet 6 inches, remaining below the 38-foot maximum permitted.
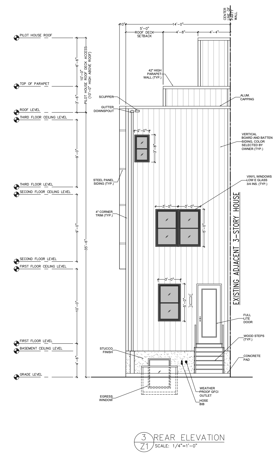
Architectural drawings depict a three-story attached rowhouse with a basement level and a flat roof capped by a parapet. The front elevation shows a raised entry accessed by a set of concrete steps and a landing, along with a basement-level opening beneath. The facade incorporates brick veneer across the upper levels with additional material changes indicated at the base.

1239 South 24th Street Rear Elevation via Philly Plans
Window openings are vertically aligned, with bay projections shown at the second and third floors. The roof includes a deck set back from the front elevation and a pilot house providing access above the main roofline.
Site plans show the structure occupying most of the lot, with a rear yard enclosed by fencing and accessed by steps from the main building. An egress well is located at the basement level, and drainage elements such as scuppers and downspouts are indicated. The property fronts South 24th Street, with an adjacent alley shown along the rear of the lot.
Subscribe to YIMBY’s daily e-mail
![]()
Follow YIMBYgram for real-time photo updates
Like YIMBY on Facebook
Follow YIMBY’s Twitter for the latest in YIMBYnews






Once 1239 S. 24th St. is built out, this Point Breeze block will be completely filled in, without any vacant lots. In 2007, there were more than a dozen.
The two 2nd and 3rd floor bay windows on the Oakford St. side are sure to provide plentiful natural light.