Permits have been issued for the construction of a new six-story mixed-use building at 300 West Huntingdon Street in North Philadelphia East. The project site is identified in zoning and permit documents as part of the Colorworks Building development, with work spanning the parcel at 2552-2566 North 3rd Street. The property is owned by Colorworks Building LLC, with Gnome Architects LLC listed as the architect and Backcourt Builders LLC serving as the contractor.
Permit documentation specifies the erection of a six-story semi-detached structure with a roof deck and roof deck access structures, containing 64 residential units. The building is classified as apartment use and includes ground-floor commercial space. The approved scope of work also includes 21 parking spaces, including one accessible space, one van-accessible space, and one electric vehicle space, along with 22 Class 1A bicycle parking spaces.

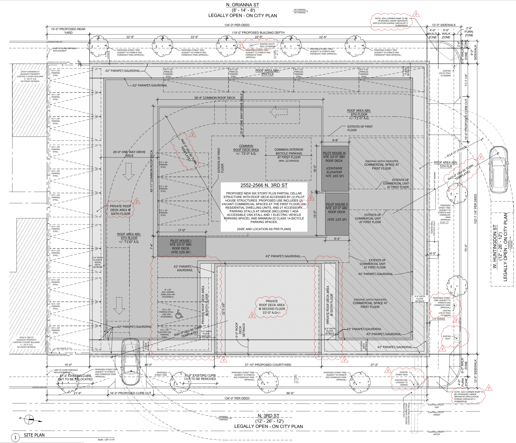
300 West Huntingdon Street Site Plan via Gnome Architects
Zoning plans indicate a lot area of 13,735 square feet, with a proposed building footprint of 12,209 square feet, representing approximately 89 percent site coverage. Open area is documented at 1,526 square feet. The zoning data table identifies the site within an ICMX district and lists a proposed building height of approximately 71 feet, exceeding the base 60-foot maximum noted in the zoning table. The plans also show a rear yard depth of 15 feet.
Site plans illustrate a large, rectangular building footprint occupying most of the parcel, with parking areas arranged at grade and accessed from the surrounding streets. A central courtyard is shown within the building mass, along with designated common roof deck areas and multiple pilot house structures providing access to roof levels. Bicycle parking is located within the first floor, and commercial space is indicated along portions of the ground level.

300 West Huntingdon Street Site via Gnome Architects
Section drawings depict a multi-level structure with a partial cellar and vertically stacked residential floors above ground-floor commercial space. The roof includes deck areas and access structures rising above the main roofline. The plans also show parapet walls surrounding roof areas and circulation elements connecting all levels.
The estimated construction timeline has not been revealed yet.
Subscribe to YIMBY’s daily e-mail
![]()
Follow YIMBYgram for real-time photo updates
Like YIMBY on Facebook
Follow YIMBY’s Twitter for the latest in YIMBYnews






Be the first to comment on "Six-Story Mixed-Use Building Permitted at 300 West Huntingdon Street in North Philadelphia East"