Permits have been issued for the construction of a new 14-story mixed-use building at 2012-14 Chestnut Street in the Center City West neighborhood of Philadelphia. The project site is located at the corner of Chestnut Street and Ionic Street. The property is owned by the Philadelphia Housing Authority, with JKRP Architects as the project architect, and Gilbane Building Company serving as the contractor. Alterra Property Group is the project developer.
Total construction cost is listed at $20,000,000.

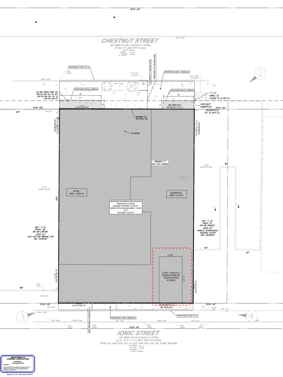
2012-14 Chestnut Street Plan via JKRP Architects
Permit documentation specifies the erection of a high-rise structure containing 121 residential units above ground-floor shell commercial space. The approved scope of work includes residential balconies, a common amenity roof deck, and roof deck access structures. The building will be fully sprinklered. The project will yield a total construction area of 112,610 square feet.
Zoning materials indicate that the site is located within a CMX-4 zoning district and is subject to the West Chestnut Street Overlay. Plans show a lot area of approximately 9,200 square feet. No off-street parking is required under the applicable zoning regulations. The project instead provides 42 Class 1A bicycle parking spaces.

2012-14 Chestnut Street Elevations via JKRP Architects
Site plans depict a full-lot development with a ground-floor level accommodating retail space and building access, with residential floors above. Drawings show a vertically organized structure with stacked residential levels and roof-level amenity space. Section drawings indicate a building height of approximately 163 feet to the top of the structure, with additional parapet and pilot house elements above. Elevations show a consistent arrangement of openings across upper floors and metal awnings at the ground level.

2012-14 Chestnut Street Section via JKRP Architects
Philly YIMBY previously reported on demolition activity at the site. Current permit records show the project advancing as a 14-story mixed-use building that replaces the previously existing structures with new residential and commercial space.
The project introduces a new high-rise residential building along Chestnut Street, with permits now in place for construction of the approved 121-unit development. The estimated construction timeline has not been revealed yet.
Subscribe to YIMBY’s daily e-mail
![]()
Follow YIMBYgram for real-time photo updates
Like YIMBY on Facebook
Follow YIMBY’s Twitter for the latest in YIMBYnews






Only 14 stories in the vicinity of skyscrapers is a rather short mid-rise building.
I’m sure anyone choosing to live there would be a multi millionaire with more than one property. A solid choice for the minimalist type. 👍🏼
Fantastic neighborhood.
Lots of delicious food choices and restaurants.
I can’t imagine someone with that much wealth riding a bicycle. Perhaps an electric scooter I suppose.
Nice looking development.
A short version of a long saga of a short building:
In 2008, Philadelphia Housing Authority (PHA) moved out of 2012-14 Chestnut St. headquarters, moving to a new $40 million structure in Sharswood. In 2013, five long years after leaving, PHA started looking for a partner to develop its former headquarters. In 2016, three long years after starting its search, PHA selected Alterra Property Group as development partner, with expected demolition of its former headquarter’s structure.
Alterra proposed a 20-story building with about 200 apartments and a large first floor retail space. PHA planned to provide Alterra a 99-year lease. As part of the development agreement, Alterra would provide 40 affordable units, with maximum tenant income 60% of the area median, roughly $31,000 for a couple or $38,550 for a family of four. Participants in this program would spend a max of 30% of their income towards rent, with PHA subsidizing the rest. The subsidized units would be situated among — and indistinguishable from — those being rented at market rate.
In January 2021, plans changed. Five long years after being selected as partner, developer Alterra and design firm JKRP Architects proposed a 162 residential unit (130 market rate, 32 subsidized ‘workforce housing’), mid-rise with 4,500 square feet of ground floor commercial space. Design was underwhelming but there was hope that Civic Design Review (CDR) would stimulate enhancements.
In July 2021, with financing in place, Philadelphia Housing Authority’s prior headquarters’ office building was scheduled to be razed starting January 2022. That did not occur but CDR was scheduled for February 2022. Renderings showed the pedestrian proposal unchanged.
In January 2023, PHA’s prior headquarters’ building remained standing and continued to attract trash and graffiti. It was unclear as to why PHA was letting this building putrefy.
In August 2023, a third demo permit was issued, after priors in 2017 and 2022. In December 2023, 2012-14 Chestnut and its adjacent parking lot were fenced off. In January 2024, an excavator was spotted on site.
As per The Inquirer, in February 2024 demo plans appeared to be moving forward to make way for a mixed-income 14-story apartment tower, potentially bringing new life to a long blighted lot. Demolition would have been the first movement on the crumbling property since 2022, following a series of thwarted redevelopment attempts after the housing authority left its four-story office space 16 years prior in 2008. Demolition was scheduled for spring 2024 but the construction timeline was less concrete (perhaps there was a concrete shortage). Alterra hoped to break ground in February 2025 but financing an affordable housing project of this size brought delays.
PHA had been working with the Alterra Property Group on the development since 2016. The February 2024 third blueprint for the apartment building displayed substantially fewer units and a larger percentage of affordable housing than originally proposed. Although the percentage was higher, the fall-off in total unit count translated into fewer affordable apartments, 72 v 80.
The third proposal was for 40% (49 units) of its 121 units (down from 200, then 162 prior) to be rented at market-rate prices, and 60% (72 units) leased to households making below 80% of the area median income — about $89,000 annually for a family of four. The original proposal for a 200-unit building had those proportions reversed (i.e., 60% [120 units] market rate and 40% [80 units] affordable). 4,500 square feet of retail space was scheduled for Chestnut Street.
More than half of the 121 units — 63 total — were to be one-bedrooms. Thirty were scheduled as two-bedrooms and 28 were to be studio apartments. The building, again designed by JKRP Architects, was to be owned by PHA and built and managed by Alterra Property Group.
The revised design rose 14 stories. Alterra had set a target date of the first quarter of 2026 for groundbreaking, with a 20- to 22-month schedule for construction. Given that, the building should have welcomed its first residents in late 2027, 19 years after PHA vacated. The rendering looked the same as the 2021 version.
In December 2025, there was a further decline in density. Commercial space was reduced from 4,500 to 2,000 square feet. The building would have 121 apartments (unchanged), 40% of which will be rented at market rate (unchanged) with the rest (60% unchanged) targeted at tenants below 80% of area median income ($83,000 for a three-person household). It would have 28 studios, 63 one-bedroom, and 30 two-bedroom units. Amenities included a roof deck. The rendering was improved with vertical elements making the “tower” look taller. The tan-yellow accent color was changed to a more attractive rust.
Now a building permit has been issued. Let the fun begin.