Permits have been issued for the construction of a new three-story residential building at 3764 North 10th Street in North Philadelphia. The project is documented in zoning and permit filings as a two-family structure. Property records list COBIC Enterprise Inc as the owner, with KCA Design Associates LLC as the project architect, and RTW Accommodations serving as the contractor.
The project carries a total construction cost of $391,000, as listed in permit filings.

3764 North 10th Street Plan via KCA Design Associates LLC
Permit documentation specifies the erection of an attached three-story structure with a cellar, intended for use as a two-family household living arrangement. The building is classified under R-3 occupancy and will contain two residential units. The approved scope of work notes that the structure will be fully sprinklered in accordance with NFPA 13D standards and requires separate permits for associated systems and site work.
Zoning materials identify the site within an RSA-2 zoning district. Plans indicate a lot area of 1,350 square feet, with a proposed building footprint of 1,005 square feet, representing approximately 74.4 percent lot coverage. Open space is documented at 345 square feet, or approximately 25.6 percent of the lot. The zoning table also lists a proposed building height of approximately 34 feet, remaining within the 35-foot maximum permitted.

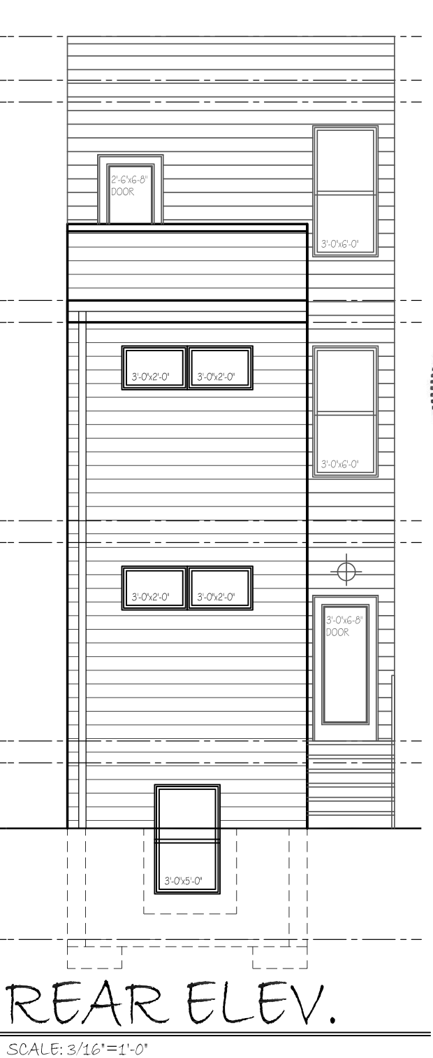
3764 North 10th Street Rear Elevation via KCA Design Associates LLC
Site plans show a rectangular lot fronting North 10th Street, with the structure occupying the majority of the parcel and a rear yard extending approximately 20 feet. The drawings indicate access from the street frontage, with the building aligned to the established rowhouse pattern along the block.

3764 North 10th Street Site Map via KCA Design Associates LLC
Elevation drawings depict a three-story structure with a basement level and a flat roof profile. The front façade shows a raised entry accessed by a stair, while the rear elevation includes door and window openings aligned across levels. The plans also show a mix of brick and siding materials, along with regularly spaced window openings.
A construction timeline has not been disclosed.
Subscribe to YIMBY’s daily e-mail
![]()
Follow YIMBYgram for real-time photo updates
Like YIMBY on Facebook
Follow YIMBY’s Twitter for the latest in YIMBYnews






The street facing visible facades of both N. 10th St. and W. Butler St. are almost all brick — a nice design touch. The lintels and sills too.
The row homes it’s replacing didn’t have central air conditioning.
Hopefully, this new development will offer more comfortable living spaces for the residents.
Close proximity to SEPTA local bus and trolley lines in a walkable distance to the Erie station of the Broad Street Line with connections to the entire city and suburbs at various stations.
No mention of off-street parking.
Proximity to Rising Sun Avenue is a nice bonus. 😉